İstanbul Sanat / Haliç Tersanesi İç Mimari Projesi
Novos Mimarlık tarafından tasarlanan "İstanbul Sanat / Haliç Tersanesi İç Mimari Projesi", Beyoğlu'nda yer alıyor.Haliç kıyısında yer alan Tersane-i Amire, Osmanlı İmparatorluğu'nun ana üssü ve donanma tersanesiydi. "Haliç", "Camialtı" ve "Taşkızak" adı altında üç farklı yerleşimden oluşmakta. Bu yerleşimlerden Haliç Tersanesi günümüze kadar tersane olarak kullanılmaya devam eden tek bölümdür. 16'ncı yüzyılda Yavuz Sultan Selim döneminde gelişen tersane, 1800'lerde modernleştirilmiştir. O dönemden kalan izler, binalardaki mimari ayrıntılarda ve gemilerin bakımının yapıldığı havuzlarda hâlâ belirgindir.
2018 yılında Erginoğlu & Çalışlar tarafından hazırlanan yeniden işlevlendirme projeleri kapsamında, Haliç Tersanesi'nde bulunan beş bloğun yenileme çalışmalarına başlanmıştır. Restorasyon süreçleri bu dönemde başlatılan hangarların inşaatları 2023 yılında tamamlanmıştır. Hangarların tamamlanmasının ardından, İBB 2023 yılında Haliç Tersanesi sürecine yeniden odaklanmıştır ve bu kapsamda Novos Architecture Studio ile birlikte çalışarak İstanbul Sanat Müzesi'ni açmayı planlanmıştır.
Haliç Tersanesi'nin bir kısmı tersane olarak kullanılırken, restore edilen yapıların iç mekanları kültür sanat programları için tasarlandı. Beş bloktan oluşan ilk etabın 4 bloğu İstanbul Sanat Müzesi ve Atölyeleri olarak tasarlandı. İki ana taş yapı; C ve D Bloklar müzenin ana sergi mekanları olarak düzenlendi. Bu yapıların önünde yer alan A Blok iç mekanı müzenin mağazası ve danışması olarak ele alındı. Bakım havuzunun yanında yer alan E Blok ise çocuklar için sanat atölyeleri ve kafe olarak düzenlendi. Bu sayede sergi mekanına hizmet eden programlar alanın geneline yayılarak yerleştirildi. Girişte bulunan B Blok ise Performans ve Kültür Merkezi olarak programlandı ve proje süreci devam etmekte.
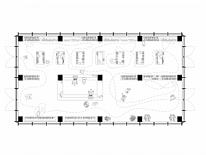
Müze olarak planlanan C ve D Bloklar İstanbul Sanat (Haliç Tersanesi) adıyla hayata geçti. Yüksek ve tek mekana sahip olan C Blok'ta sergileme yerleşimi bu mekanının mimarisini ortaya çıkaracak şekilde planlandı. Girişte ziyaretçileri karşılayan, kendi ayakları üzerinde duran bir duvar yer almakta. Bu duvar hem serginin içeriğinin yazıldığı hem de arkasındaki mekanı saklayan bir konuma sahip. Yapının çevresinde yer alan sergileme duvarları ise çatıyı ayakta tutan çelik konstrüksiyonun önüne yerleşiyor. Zeminden ve tavandan kopuk olarak yerleştirilen bu duvarlar yapının mevcut tarihi taş duvarlarını kendine arka plan yapıyor.
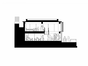
Yerleşimin merkezinde olan D Blok ise tarihi taş duvarları ile çevredeki yapılardan kendini ayrıştırmakta. İki katlı olan bu yapı bir önceki yenilenme sürecinde siyah renge sahip çelik konstrüksiyon ile ayağa kaldırılmış. Bu mekanın içine eklenen sergi duvarları mevcut duvarların önünde yer alıyor, mevcuta olan mesafesini koruyor. 77 metre uzunluğa sahip hangarın içinde farklı sergileme mekanları kurgulandı. Odalar, holler ve koridorlardan oluşan bu mekanlar hangarın perspektifini, derinliğini kaybetmeyecek şekilde yerleştirildi.
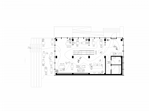
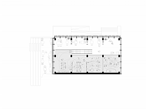
Müzenin girişinde yer alan A Blok ise danışma ve müze mağazası programlarını birlikte barındırmakta. Yapının giriş-çıkış koridor aksında, danışma ve satış birimi için tasarlanan ahşap ünite yer alıyor. Arka koridorda ise farklı ürün sergileme tiplerine olanak veren beyaz renkte mağazanın sergileme mobilyaları bulunuyor.
Müzenin sanat atölyelerinin yapılacağı mekanlar ise E Blok'ta planlandı. Bu sayede müzenin kapalı olduğu zamanlarda da atölyeler açık olabiliyor. Çocuk etkinlikleri için planlanan mekanlar birinci katta yer alıyor. Küçük bir sahne/etkinlik alanı, grup çalışmaları ve bireysel atölyeler için farklı mobilyalar tasarlandı ve mekana yerleştirildi. Zemin kat ise önünde yer alan terası ve kafe mekanı ile aileler için bir bekleme, zaman geçirme alanı olarak planlandı.

Tweet