19/26
Paylaş
Resmi Orjinal Boyutunda Göster
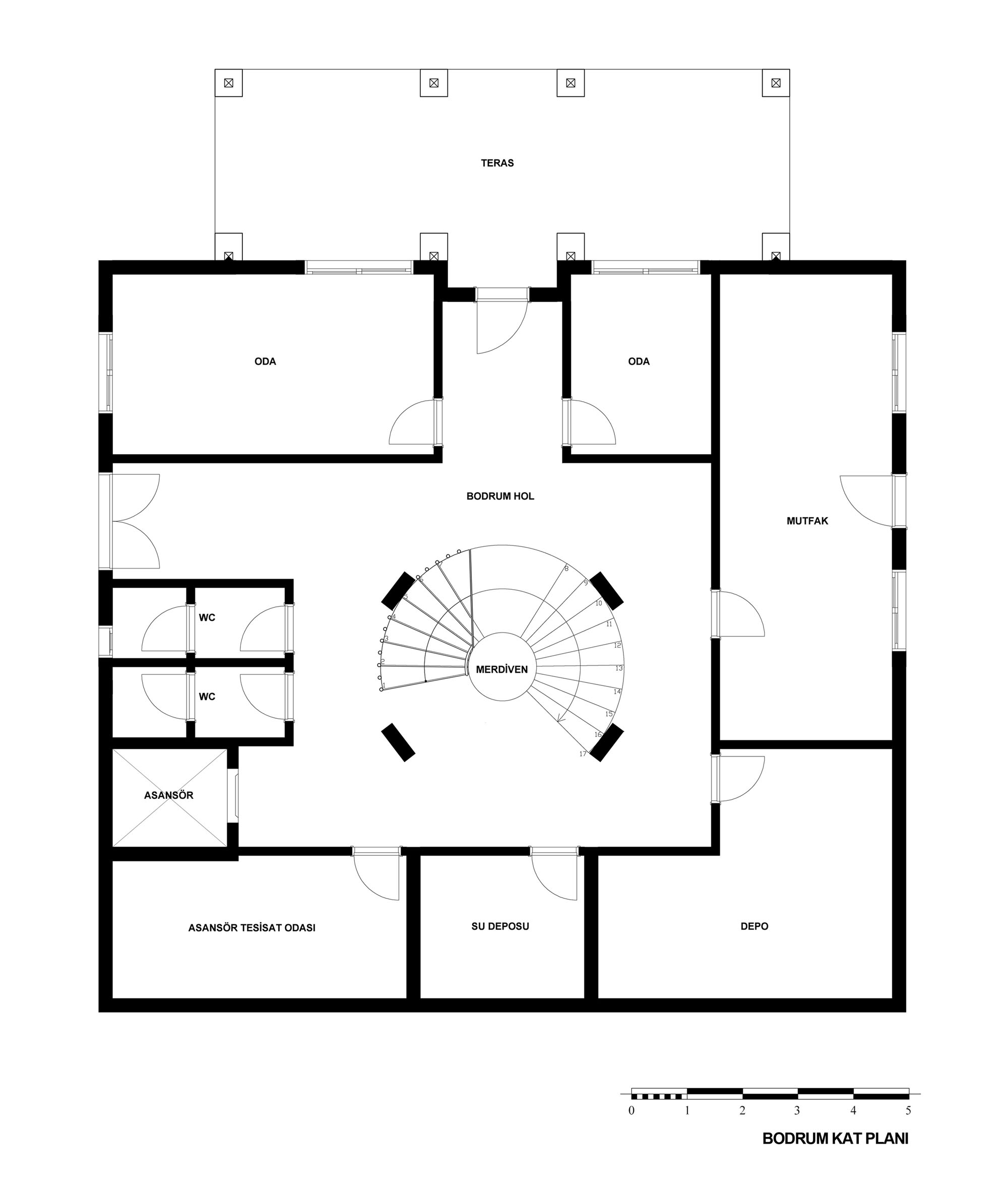
Güzelbahçe Kültür Merkezi
Proje Yeri: İzmir
Proje Ofisi: Arkayın Mimarlık
Proje Tipi: Cemevi
Proje Tipi Grubu: Dini
Tasarım Ekibi: Tufan Arkayın
İşveren: Yaka Köyü Kültür Derneği
Ana Yüklenici: Yaka Köyü Kültür Derneği
İç Mekan Projesi: Tufan Arkayın
Proje Yöneticisi: Tufan Arkayın
Statik Projesi: Deniz Alkan
Mekanik Projesi: Özan Parlar
Tesisat Projesi: Özan Parlar
Fotoğraf: Tufan Arkayın
Proje Başlangıç Yılı: 2013
Proje Bitiş Yılı: 2013
İnşaat Başlangıç Yılı: 2013
İnşaat Bitiş Yılı: 2013
Arsa Alanı: 740 m²
Toplam İnşaat Alanı: 600 m²