8/9
Paylaş
Resmi Orjinal Boyutunda Göster
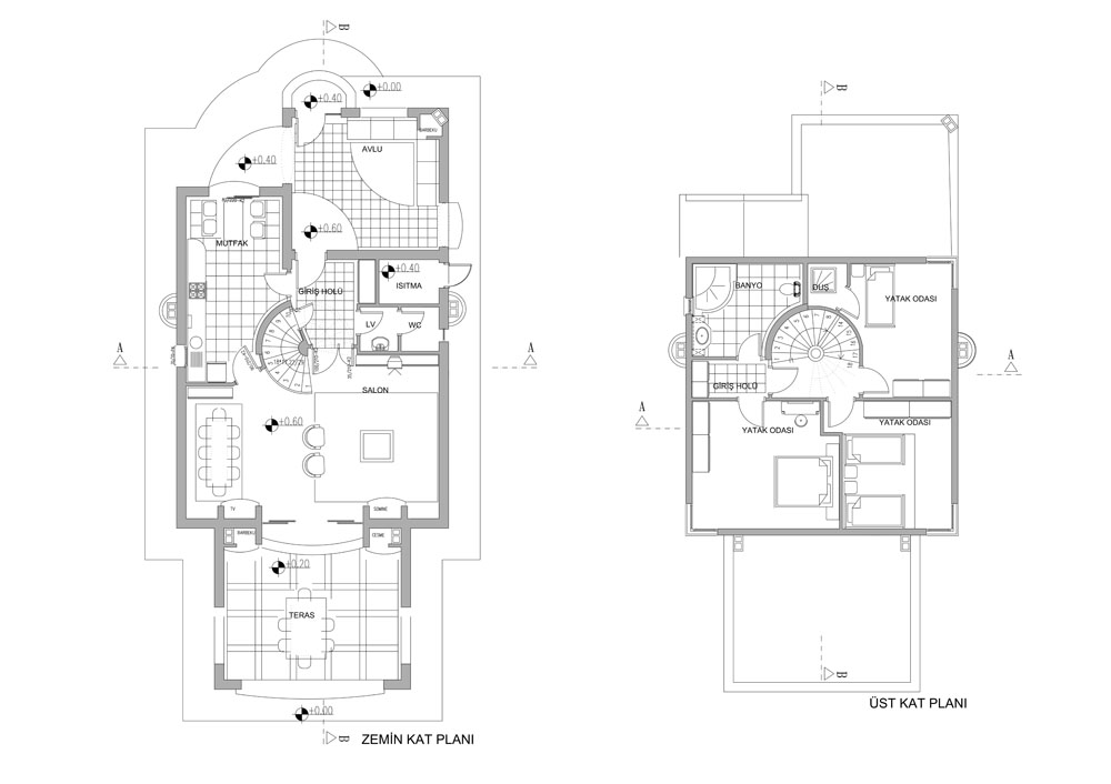
L. Yolbulan Konutu
Proje Yeri: Kayseri
Proje Ofisi: Turim Mimarlık
Proje Tipi: Tek Ev / Villa
Tasarım Ekibi: Kemal Demir
Statik Projesi: Hüseyin Özbağ
Proje Başlangıç Yılı: 1995
Proje Bitiş Yılı: 1995
İnşaat Başlangıç Yılı: 1995
İnşaat Bitiş Yılı: 1998
Arsa Alanı: 754 m²
Toplam İnşaat Alanı: 244 m²