Fotoğraf: KET Kolektif / Bahadır Kul Architects
37/43
Paylaş
Resmi Orjinal Boyutunda Göster
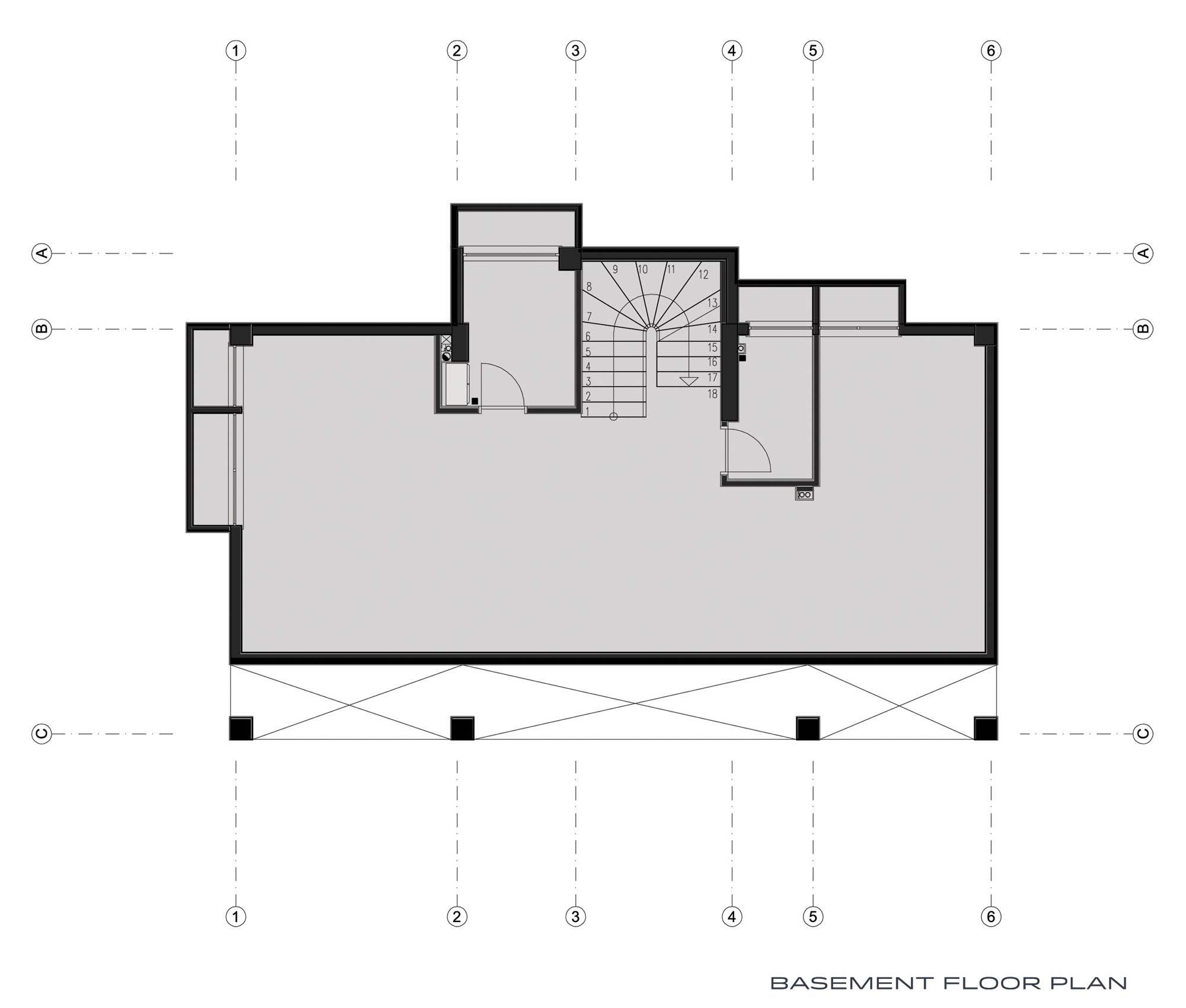
BK House
Proje Yeri: Kayseri
Proje Ofisi: Bahadır Kul Architects
Proje Tipi: Tek Ev / Villa
Tasarım Ekibi: Bahadır Kul
İşveren: Bahadır Kul
Peyzaj Mimarlığı: Bahadır Kul Architects
İç Mekan Projesi: Bahadır Kul Architects
Aydınlatma Projesi: Bahadır Kul Architects
Statik Projesi: Göktem Mühendislik
Mekanik Projesi: 2Y Mekanik
Elektrik Projesi: Sistemli Elektrik
Fotoğraf: KET Kolektif
Proje Başlangıç Yılı: 2010
Proje Bitiş Yılı: 2010
İnşaat Başlangıç Yılı: 2012
İnşaat Bitiş Yılı: 2014
Arsa Alanı: 1000 m2
Toplam İnşaat Alanı: 450 m2