6/25
Paylaş
Resmi Orjinal Boyutunda Göster
2. Ödül
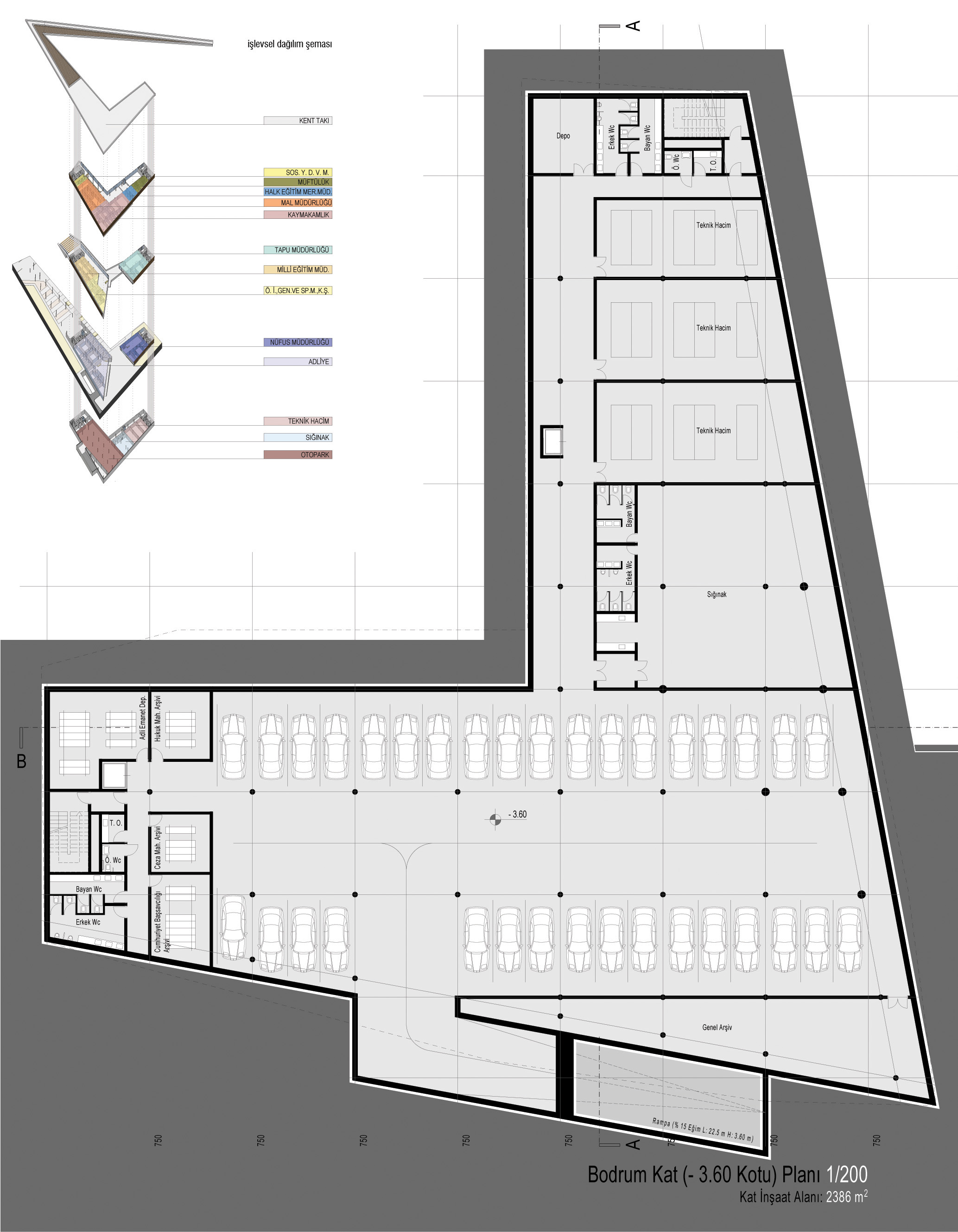
Proje Yeri: Lapseki
Proje Ofisi: İki Artı Bir Mimarlık
Proje Tipi: Hükümet Konağı / Valilik
Proje Tipi Grubu: 2. Ödül
Tasarım Ekibi: Ferhat Hacıalibeyoğlu, Deniz Dokgöz, Orhan Ersan
Danışman: Cemal Coşak, Bülent Özgür, Kemal Gülavşar
Yardımcı: Turgut Şakiroğlu, Gülcan Afacan, Volkan Barboros, Deniz Külekçi, Kortay Ceylan, Gizem Yazıcı, Ceren Doğan, İlkem Kılıç