10/13
Paylaş
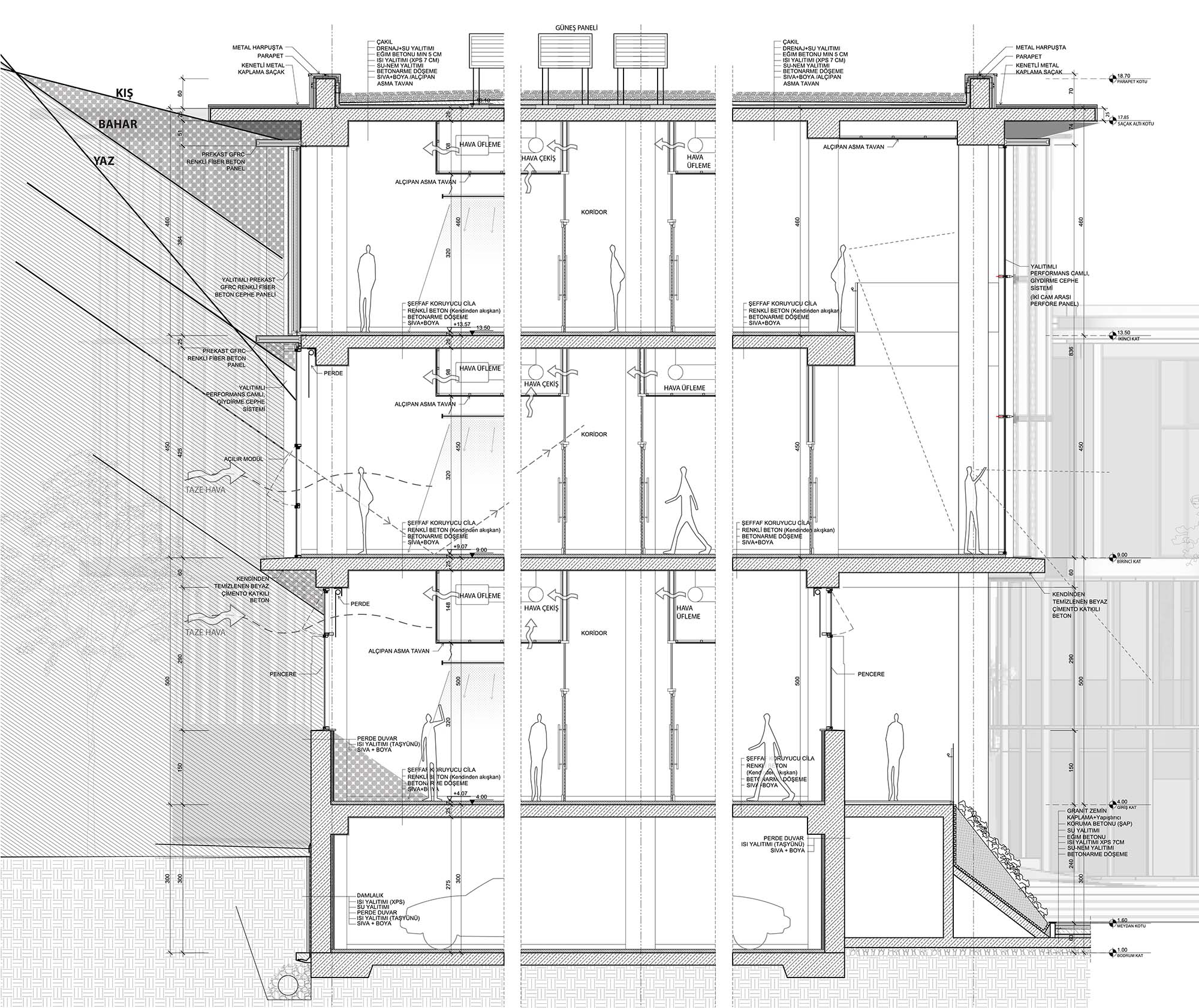
Resmi Orjinal Boyutunda Göster
Lapseki Hükümet Konağı ve Çevresi Mimari Proje Yarışması
Proje Yeri: Çanakkale, Lapseki
Proje Ofisi: SANALarc Mimarlık, Araştırma ve Kentsel Tasarım
Proje Tipi: Hükümet Konağı / Valilik
Proje Tipi Grubu: Eşdeğer Mansiyon
Tasarım Ekibi: Murat Şanal, Alexis Şanal, Orkun Beydağı, Begüm Arseven Öner