26/30
Paylaş
Resmi Orjinal Boyutunda Göster
Aca SU
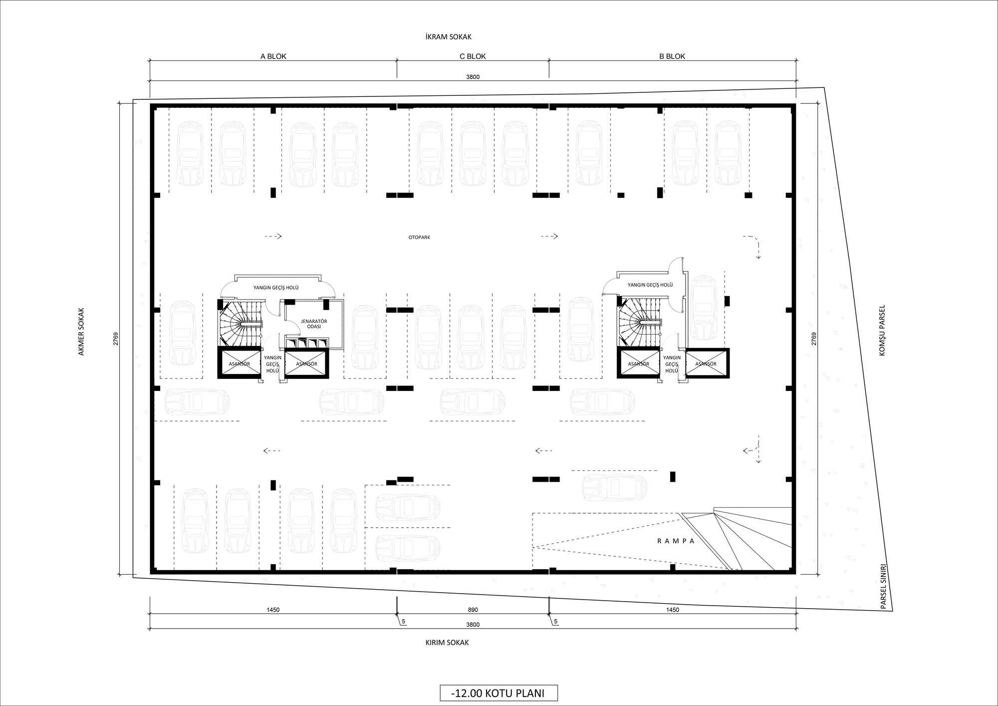
Proje Yeri: Kağıthane, İstanbul
Proje Ofisi: 34 Architects
Proje Tipi: Konut Sitesi / Grubu
Proje Tipi Grubu: Konut
Tasarım Ekibi: Cenk Saraçoğlu, Zeynep Bahar, Duygu Özkan
İşveren: Aca Yapı ve İnşaat
İç Mekan Projesi: 34 Architects
Statik Projesi: Ahmet Yünsal
Proje Başlangıç Yılı: 2012
Proje Bitiş Yılı: 2013
İnşaat Başlangıç Yılı: 2013
İnşaat Bitiş Yılı: 2014
Arsa Alanı: 1,258 m²
Toplam İnşaat Alanı: 8,681 m²