10/10
Paylaş
Resmi Orjinal Boyutunda Göster
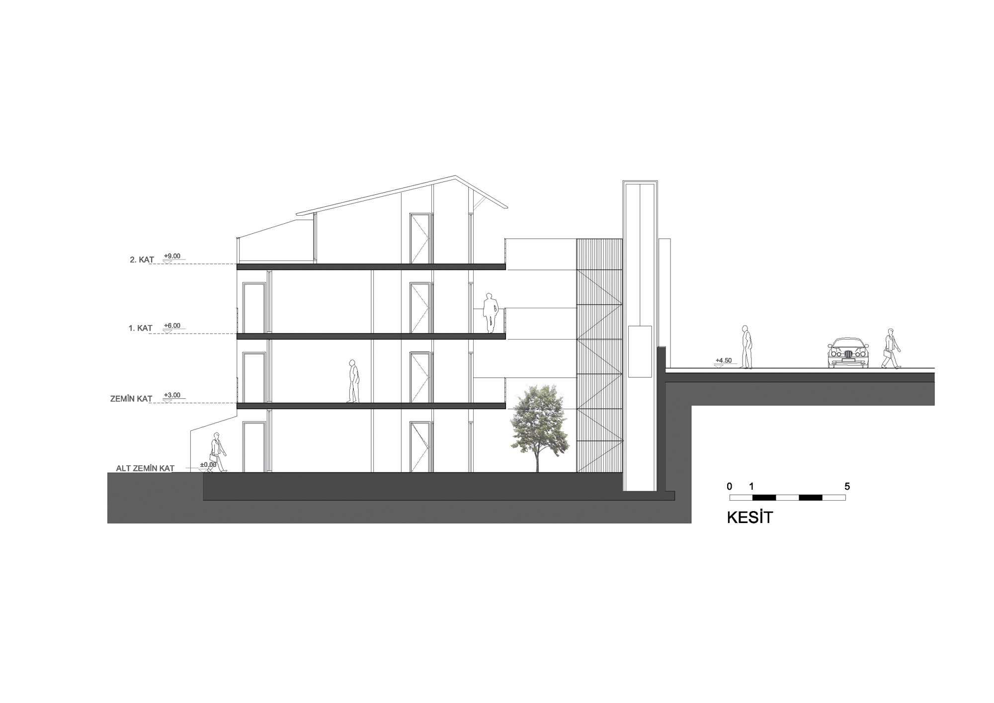
ODTÜ Öğretim Elemanları Lojmanı
Proje Yeri: Ankara
Proje Tipi: Konut Sitesi / Grubu
Proje Tipi Grubu: Konut
Tasarım Ekibi: Celal Abdi Güzer
İşveren: Orta Doğu Teknik Üniversitesi (ODTÜ)
Ana Yüklenici: Orta Doğu Teknik Üniversitesi Geliştirme Vakfı
Proje Yöneticisi: Hale Can
Statik Projesi: Mimar Sinan Mühendislik, Sabri Kuşçu
Mekanik Projesi: Bahri Türkmen Mühendislik, Bahri Türkmen
Elektrik Projesi: Özay Mühendislik, Kemal Aykaç
Fotoğraf: Celal Abdi Güzer, Lale Özgenel
Proje Başlangıç Yılı: 2013
Proje Bitiş Yılı: 2014
İnşaat Başlangıç Yılı: 2013
İnşaat Bitiş Yılı: 2014
Arsa Alanı: 6.000 m²
Toplam İnşaat Alanı: 4.500 m2