7/13
Paylaş
Resmi Orjinal Boyutunda Göster
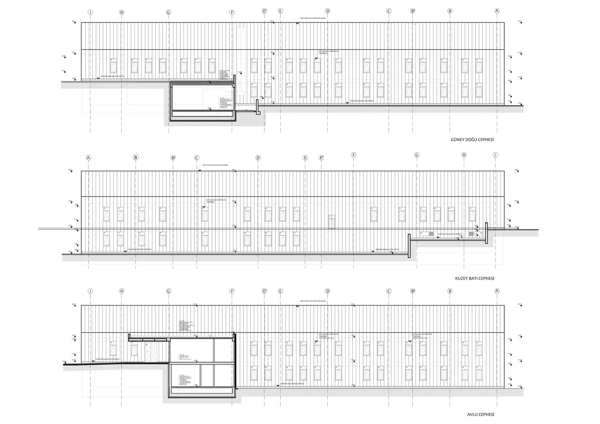
Doğuş Van Otistik Çocuklar Eğitim Merkezi
Proje Yeri: Edremit, Van
Proje Ofisi: Efekta Mimarlık
Proje Tipi: Diğer Eğitim Yapıları
Proje Tipi Grubu: Eğitim
Tasarım Ekibi: Kayhan Çakanel, Yüksel Öztürk, Özge Sert
İşveren: Doğuş Gayrimenkul Yatırım ve İşletme
Ana Yüklenici: Doğuş Gayrimenkul Yatırım ve İşletme
Peyzaj Mimarlığı: Kardelen Peyzaj Planlama
İç Mekan Projesi: Efekta Mimarlık
Statik Projesi: Yapı Teknik Mühendislik
Mekanik Projesi: Boyut Proje
Elektrik Projesi: Boyut Enerji
Tesisat Projesi: Boyut Proje
Proje Başlangıç Yılı: 2012
Proje Bitiş Yılı: 2013
İnşaat Başlangıç Yılı: 2013
İnşaat Bitiş Yılı: 2014
Arsa Alanı: 15,604 m²
Toplam İnşaat Alanı: 6,686 m²