10/20
Paylaş
Resmi Orjinal Boyutunda Göster
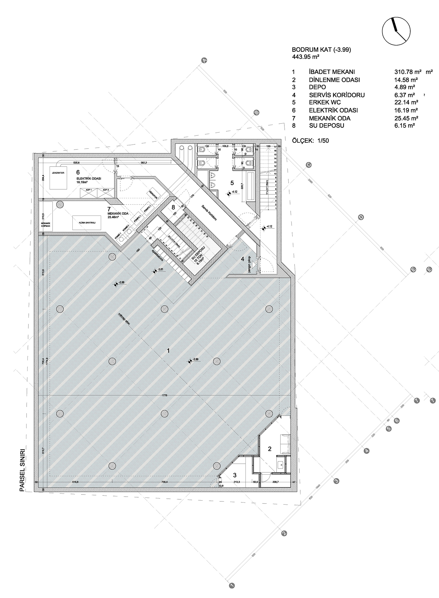
2. Ödül
Proje Yeri: Büyükada
Proje Tipi: Cami / Mescit
Proje Tipi Grubu: 2. Ödül
Tasarım Ekibi: Ersin Temurcan, Fazıl Efe İlgen
Yardımcı: Mehmet Gürol Civi, Zafer Nuriev
Statik Projesi: Kubilay Savaşeri
Mekanik Projesi: Sertuğ Yanger
Elektrik Projesi: Deniz Aydemir