6/23
Paylaş
Resmi Orjinal Boyutunda Göster
3. Mansiyon
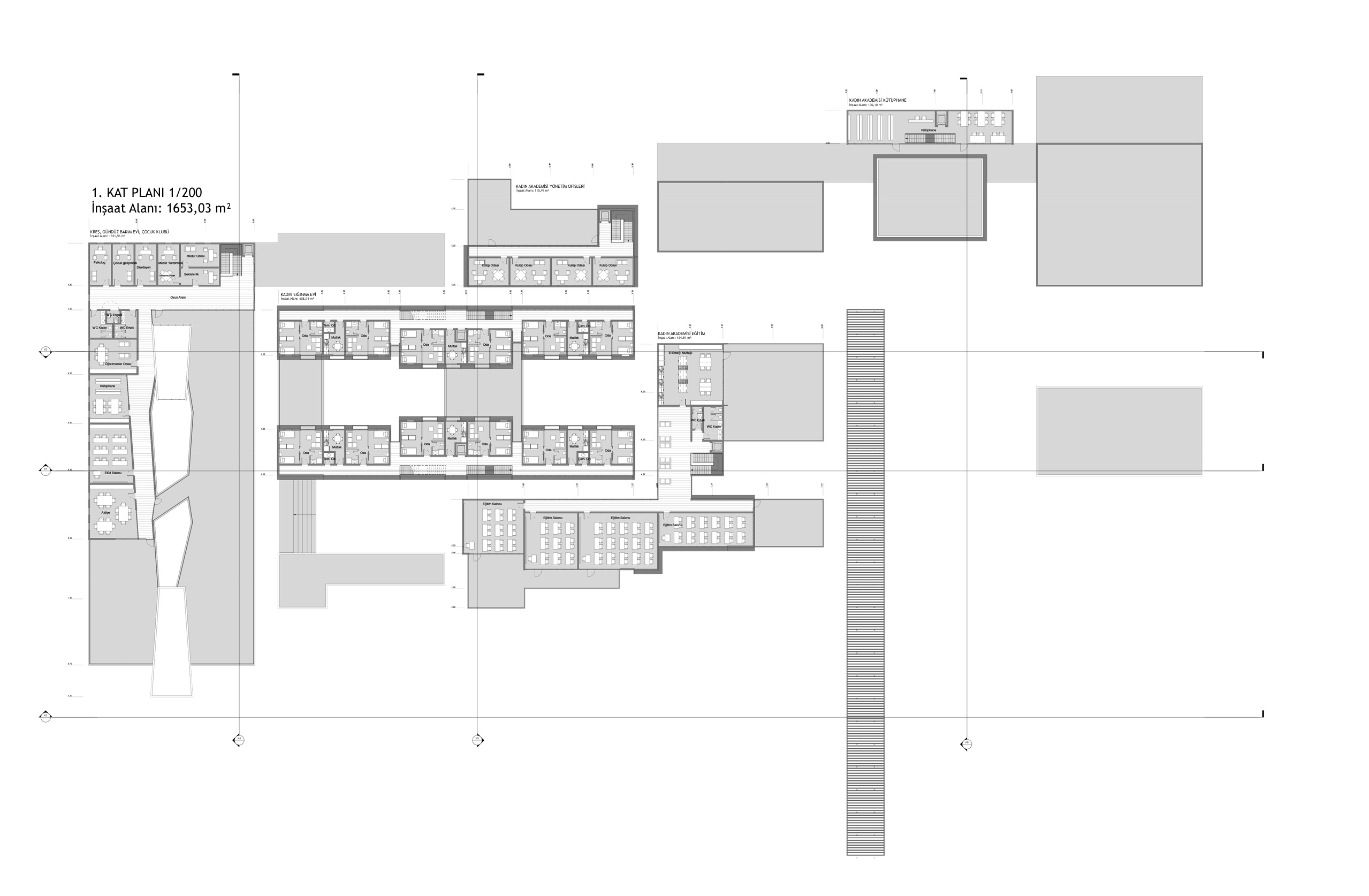
Proje Yeri: Lüleburgaz
Proje Ofisi: Ofis 16 Mimarlık
Proje Tipi: Sosyal Tesis, Anaokulu / Kreş
Proje Tipi Grubu: 3. Mansiyon
Tasarım Ekibi: Eser Köken İşleyici, Sevda Özkan İmamoğlu, Zümral Aygüler Kartal
Yardımcı: Müge Erkılıç, Betül Ceylan, Hatice Şengel
Statik Projesi: Ekin Akkaya
Mekanik Projesi: Gökhan Tatlıdede
Elektrik Projesi: Cem Köken