17/26
Paylaş
Resmi Orjinal Boyutunda Göster
Katılımcı
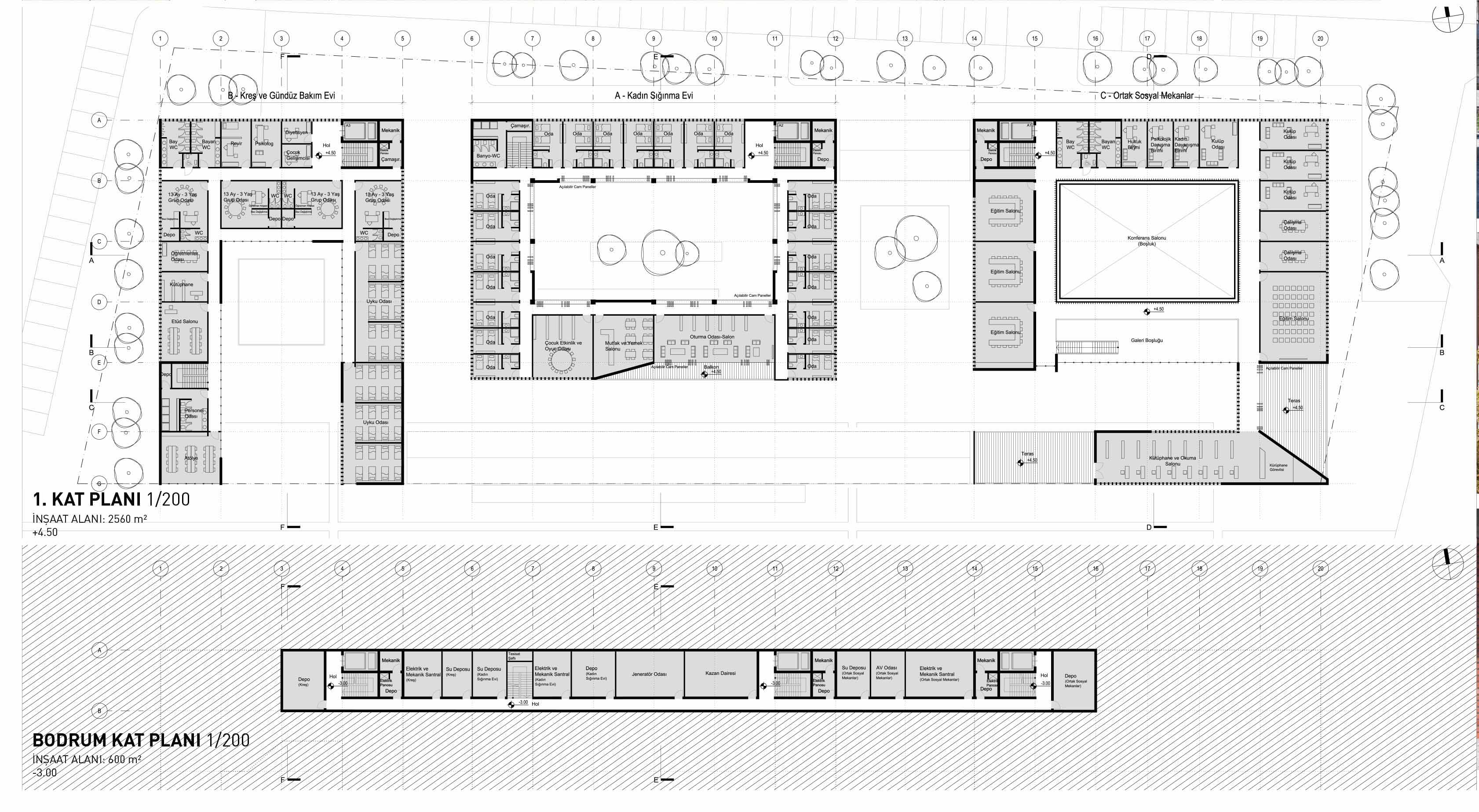
Proje Yeri: Lüleburgaz
Proje Tipi: Sosyal Tesis, Anaokulu / Kreş
Proje Tipi Grubu: Katılımcı
Tasarım Ekibi: Deren Uysal, Mete Keskin, Emre Engin, Hadis Abdula
Danışman: Esra Yılmaz Keskin, Tolgahan Akbulut, Egemen Karakaya, Serhat Aksu
Peyzaj Mimarlığı: Öykü Kocaman
Statik Projesi: Bora Kaçar
Mekanik Projesi: Ali Türker
Elektrik Projesi: Bayram Ekici