33/69
Paylaş
Resmi Orjinal Boyutunda Göster
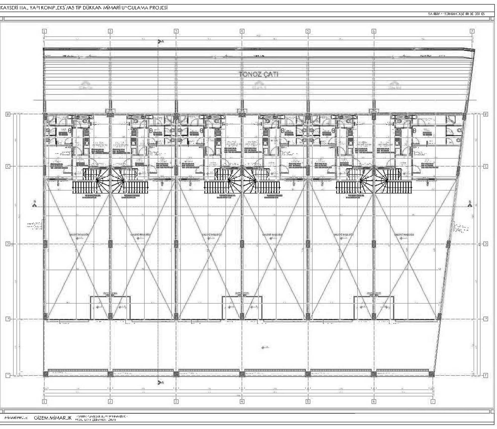
Kayseri Büyükşehir Belediyesi Hal Kompleksi
Proje Yeri: Kayseri, Kocasinan
Proje Ofisi: Gizem Mimarlık
Proje Tipi: Pazar Yeri
Proje Tipi Grubu: Kamu, Ticari
Tasarım Ekibi: Pembegül Selman
İşveren: Kayseri Büyükşehir Belediyesi
Danışman: Kayseri Büyükşehir Belediyesi Etüd ve Projeler Daire Başkanı, Kayseri Sebze ve Meyve Hali Kooperatif Yönetimi
Yardımcı: Yasin Türkay
Ana Yüklenici: GAM İnşaat
Proje Yöneticisi: Pembegül Selman
Konsept Tasarımı: Pembegül Selman
Uygulama Projesi: Pembegül Selman
Statik Projesi: Volkan Erciş
Mekanik Projesi: Coşkun Tatlıoğlu
Elektrik Projesi: Rahmi Temiz
Mimari Mesleki Kontrollük: Pembegül Selman
Şantiye Yöneticisi: Sait Bozdağ
Proje Başlangıç Yılı: 2012
Proje Bitiş Yılı: 2012
İnşaat Başlangıç Yılı: 2013
İnşaat Bitiş Yılı: 2014
Arsa Alanı: 110,000 m²
Toplam İnşaat Alanı: 35,000 m²