28/42
Paylaş
Resmi Orjinal Boyutunda Göster
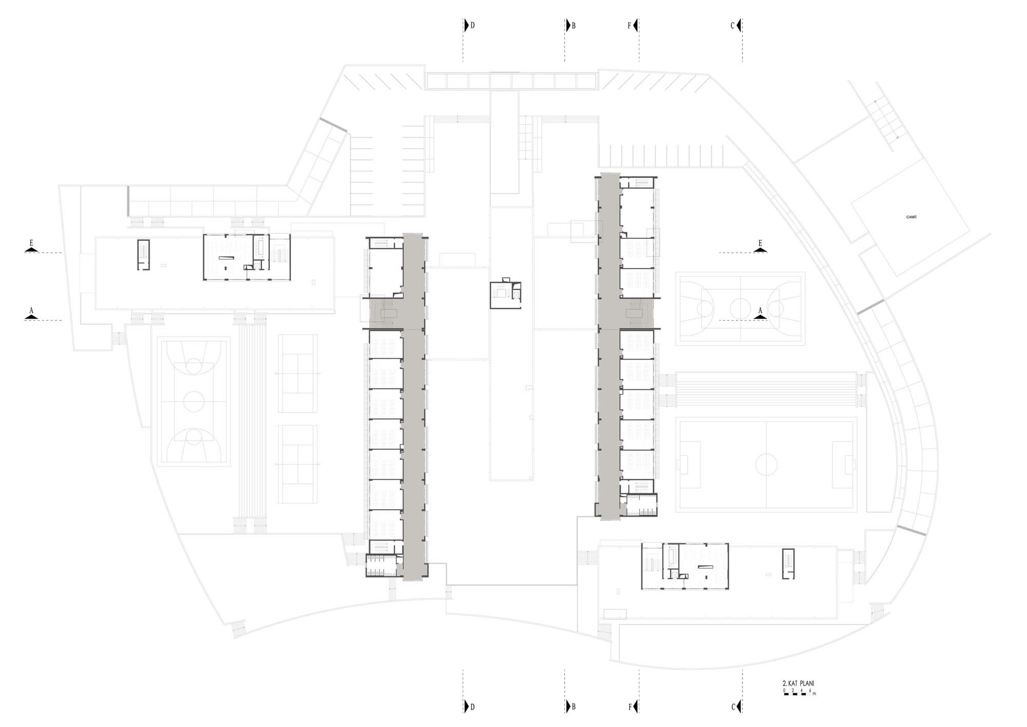
Şile Anadolu İmam Hatip Lisesi
Proje Yeri: Şile, İstanbul
Proje Ofisi: Taha Mimarlık
Proje Tipi: Lise / Ortaöğretim
Proje Tipi Grubu: Eğitim
Tasarım Ekibi: Talha Haksever
İşveren: Çeliktaş, Sınai Kumu Sanayi ve Ticaret
Yardımcı: Pınar Yalçın, Nilgün Erdik, Hülya Oral
Ana Yüklenici: İstanbul İl Özel İdaresi
Proje Yöneticisi: Pınar Yalçın
Statik Projesi: İmar Yapı Mühendislik
Mekanik Projesi: Civa Mühendislik
Elektrik Projesi: Tmf Mühendislik
Fotoğraf: Taha Mimarlık
Proje Başlangıç Yılı: 2012
Proje Bitiş Yılı: 2012
İnşaat Başlangıç Yılı: 2013
İnşaat Bitiş Yılı: 2015
Arsa Alanı: 52,800 m2
Toplam İnşaat Alanı: 22,928 m2