5/10
Paylaş
Resmi Orjinal Boyutunda Göster
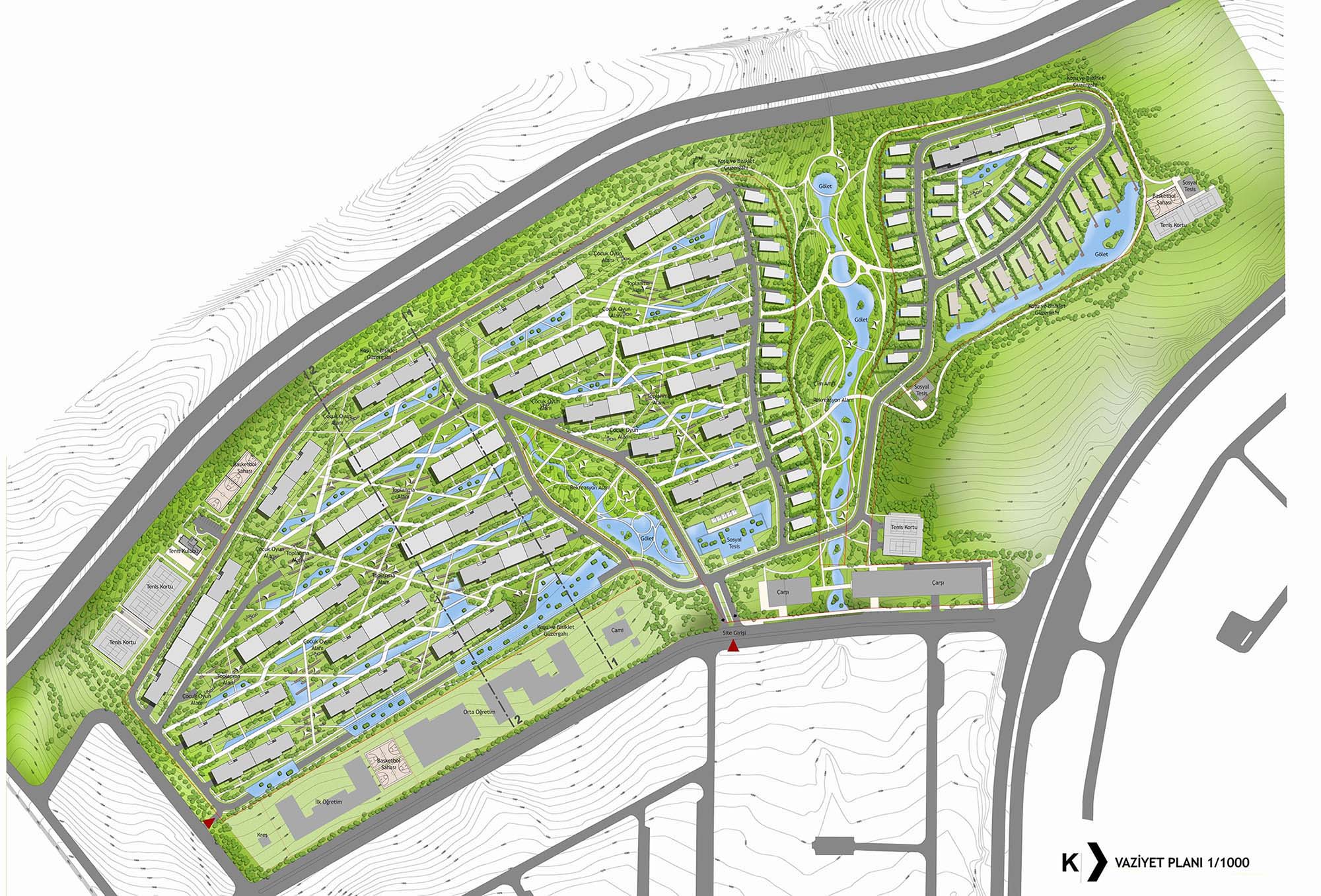
Konya Meram Konut Geliştime Projesi
Proje Yeri: Konya, Meram
Proje Ofisi: Mozaik Mimarlık
Proje Tipi: Konut Sitesi / Grubu
Proje Tipi Grubu: Konut
Tasarım Ekibi: Cemal Mutlu, Ferhat Sürek, Yağız Ezer, Ali Derya Mutlu, Ecem Kocaarslan
Peyzaj Mimarlığı: MDesign
Proje Başlangıç Yılı: 2014
Arsa Alanı: 316,312 m2
Toplam İnşaat Alanı: 244,061 m2