7/20
Paylaş
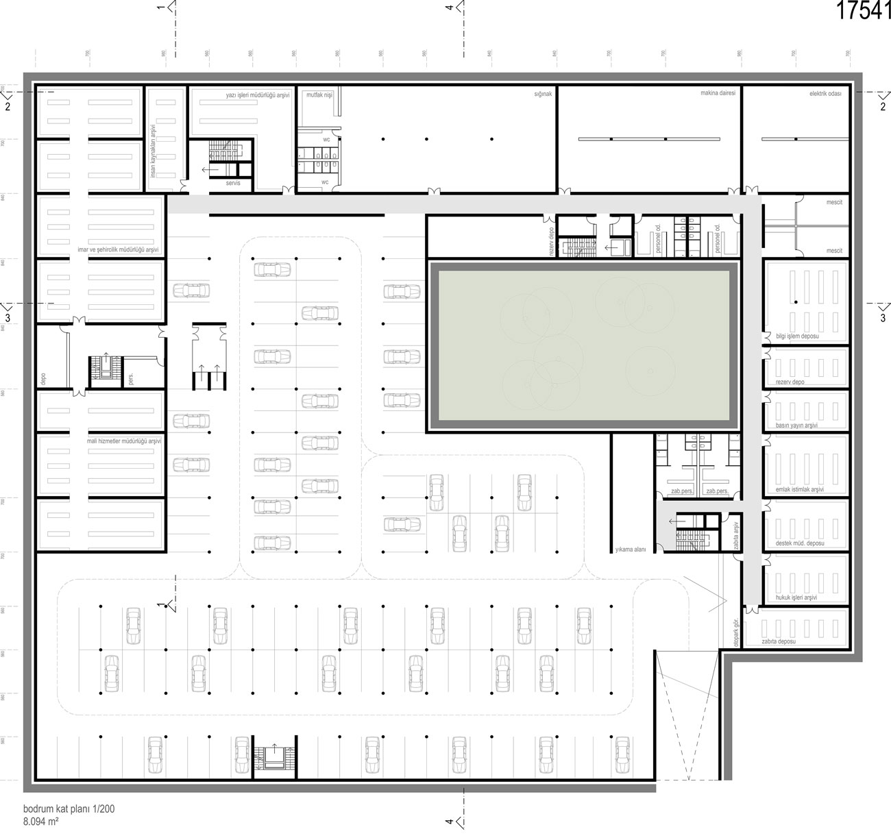
Resmi Orjinal Boyutunda Göster
Eşdeğer Mansiyon (Buda Mimarlık, Kolektif Mimarlar)
Proje Yeri: İnegöl
Proje Ofisi: Buda Mimarlık, Kolektif Mimarlar
Proje Tipi: Belediye Hizmet Binası
Proje Tipi Grubu: Eşdeğer Mansiyon
Tasarım Ekibi: Burak Pelenk, Barış Demir, Sıddık Güvendi
Danışman: Ceyda Özbilen, Murat Akyüz, Orhan Murat Gürson
Yardımcı: Soyer Bayraktar, Dilara Demiralp, Damla İçyer, Oğuzhan Yılmaz, yarismaylayap.com