22/25
Paylaş
Resmi Orjinal Boyutunda Göster
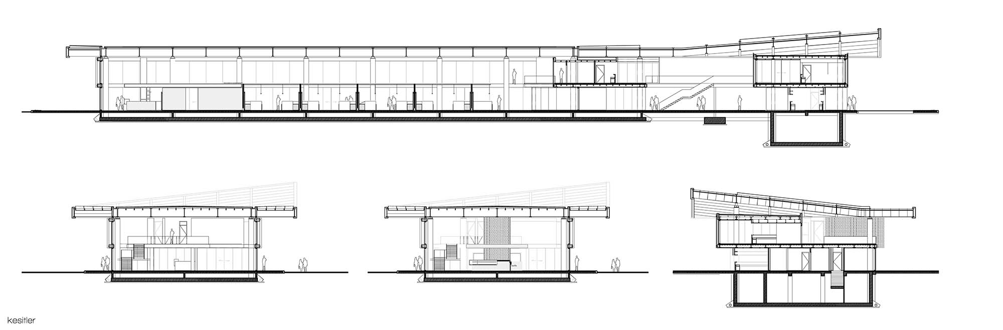
Lüleburgaz Şehirlerarası Otobüs Terminali
Proje Yeri: Lüleburgaz, Kırklareli
Proje Tipi: Otogar
Proje Tipi Grubu: Ulaşım
Tasarım Ekibi: Sıddık Güvendi, Tuna Han Koç, Barış Demir, Oya Eskin Güvendi
İşveren: Lüleburgaz Belediyesi
Ana Yüklenici: Mufa İnşaat
Alt Yüklenici: Deneme Alt Yüklenici
İç Mekan Projesi: Dicle Hökenek Architecture
Aydınlatma Projesi: Studio Lighting Design
Statik Projesi: Tektaş Mühendislik
Mekanik Projesi: Arkon Mekanik
Elektrik Projesi: A-D Elektrik
Çelik Projesi: Tektaş Mühendislik
Fotoğraf: Engin Gerçek, Ahmet Kazu
Mimari Mesleki Kontrollük: Sıddık Güvendi, Tuna Han Koç, Barış Demir
Proje Başlangıç Yılı: 2013,
Proje Bitiş Yılı: 2014
İnşaat Başlangıç Yılı: 2015
İnşaat Bitiş Yılı: 2016
Arsa Alanı: 10,000 m²