10/10
Paylaş
Resmi Orjinal Boyutunda Göster
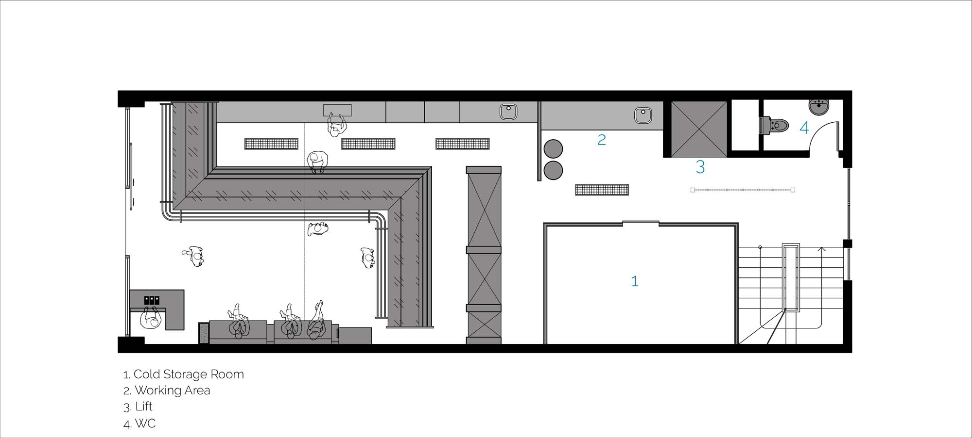
Murat Et
Proje Yeri: Antalya, Kepez
Proje Ofisi: KST Mimarlık
Proje Tipi: Restoran / Kafe / Bar
Proje Tipi Grubu: Ticari
Tasarım Ekibi: Kemal Serkan Tokis
Fotoğraf: Doğa Yusuf Dökdök
Proje Başlangıç Yılı: 2016
Proje Bitiş Yılı: 2016
İnşaat Başlangıç Yılı: 2016
İnşaat Bitiş Yılı: 2016
Toplam İnşaat Alanı: 348 m2