4/20
Paylaş
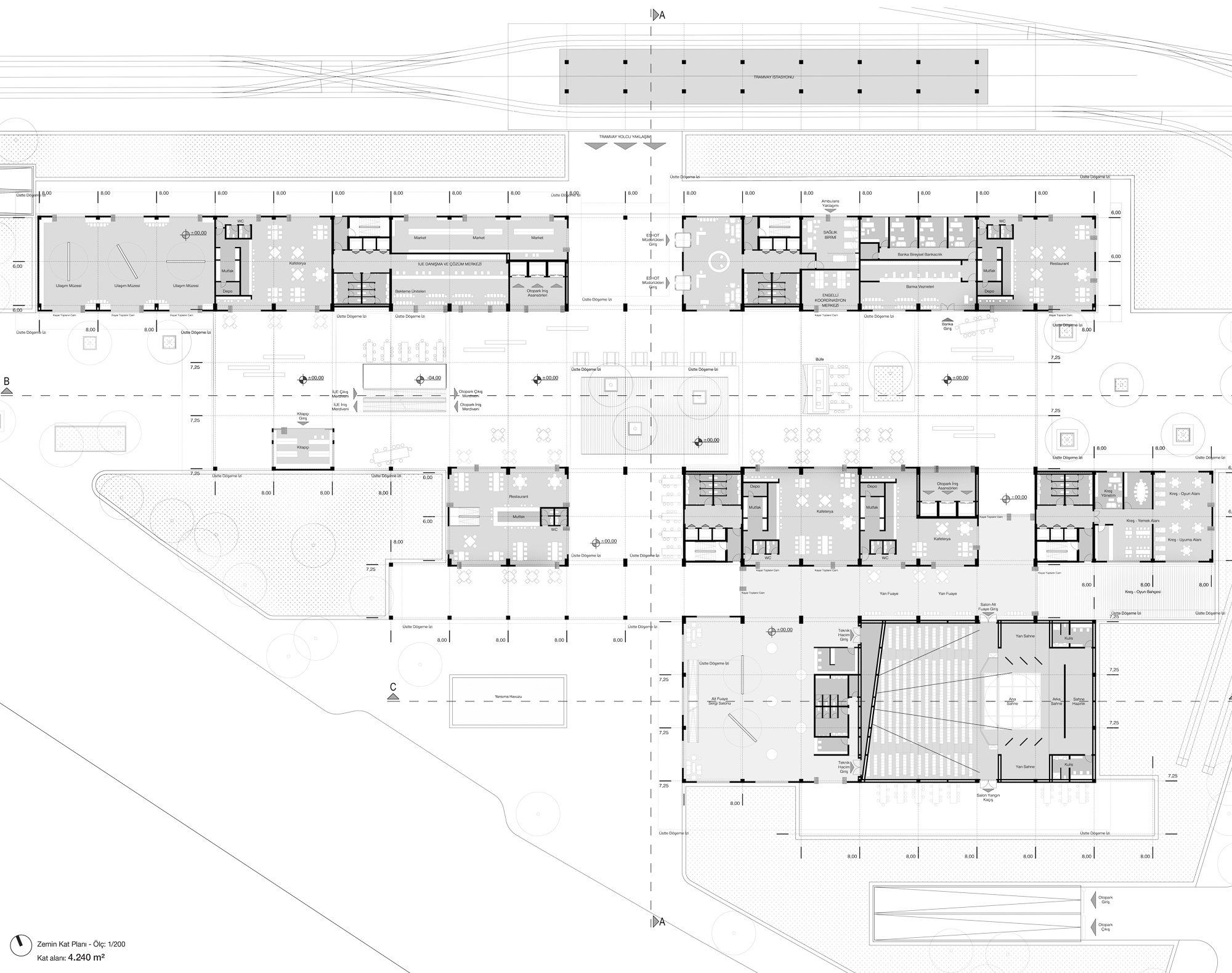
Resmi Orjinal Boyutunda Göster
Eşdeğer Mansiyon(46983 Rumuzlu Proje)
Proje Yeri: İzmir
Proje Tipi: İstasyon / Durak
Proje Tipi Grubu: Eşdeğer Mansiyon
Tasarım Ekibi: Deniz Yazıcı, Doğan Türkkan, Onur Akın
Danışman: Özgür Şentürk, Nail Ünal, Tuna Taşlık
Yardımcı: Hande Türkkan, Müge Kuzubaşıoğlu