24/32
Paylaş
Resmi Orjinal Boyutunda Göster
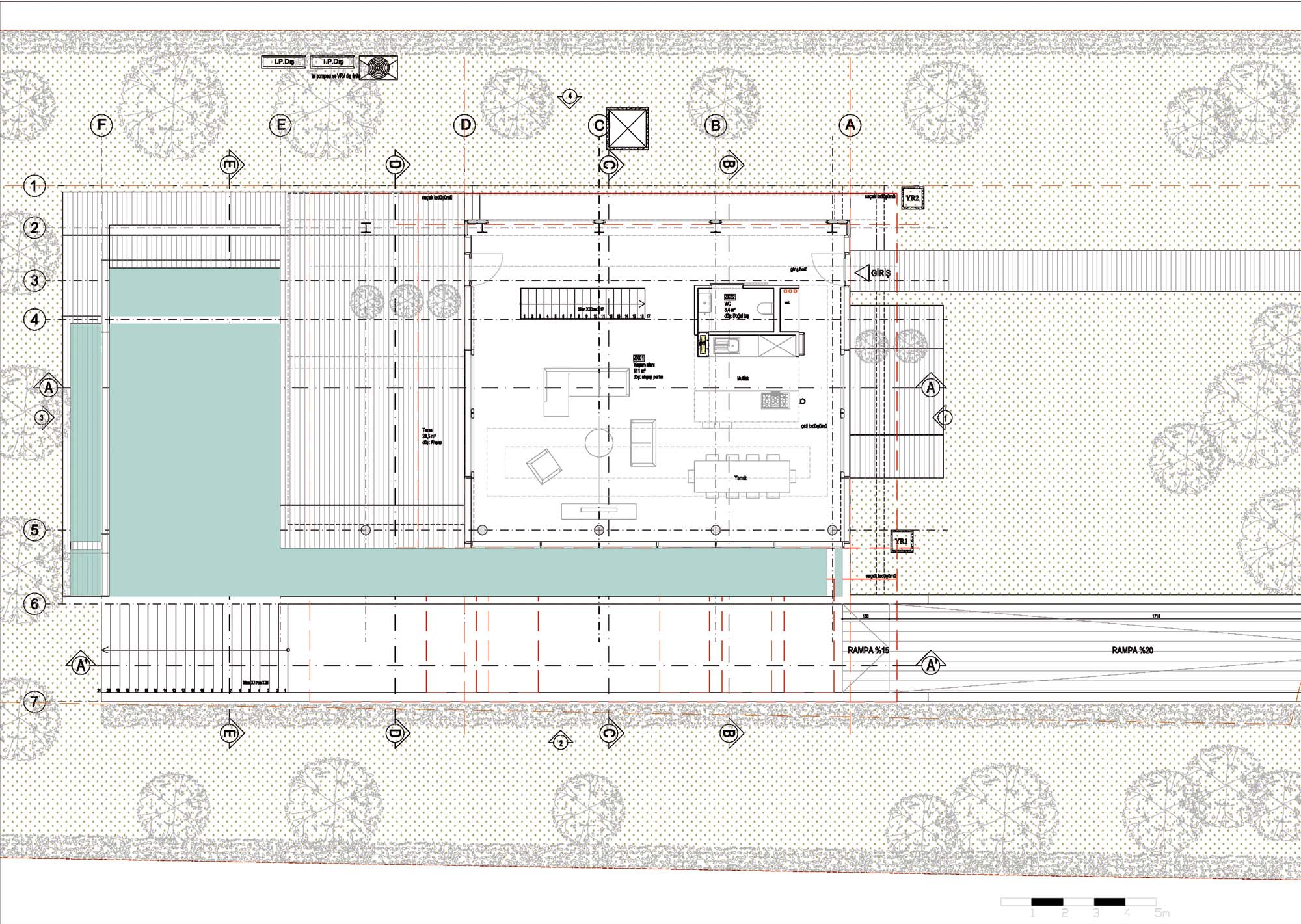
Narlıdere Evi
Proje Yeri: İzmir, Narlıdere
Proje Ofisi: Boran Ekinci Mimarlık
Proje Tipi: Tek Ev / Villa
Proje Tipi Grubu: Konut
Tasarım Ekibi: Boran Ekinci
İşveren: Bora Turan
Yardımcı: Sinan Logie
Ana Yüklenici: Dere Group
Uygulama Projesi: Boran Ekinci Mimarlık
Statik Projesi: Hibrit Mühendislik
Mekanik Projesi: Meytes Tesisat
Elektrik Projesi: Onmuş Elektrik
Fotoğraf: Cemal Emden
Proje Başlangıç Yılı: 2014
Proje Bitiş Yılı: 2015
İnşaat Başlangıç Yılı: 2015
İnşaat Bitiş Yılı: 2016
Arsa Alanı: 2,608 m2
Toplam İnşaat Alanı: 514 m2