16/19
Paylaş
Resmi Orjinal Boyutunda Göster
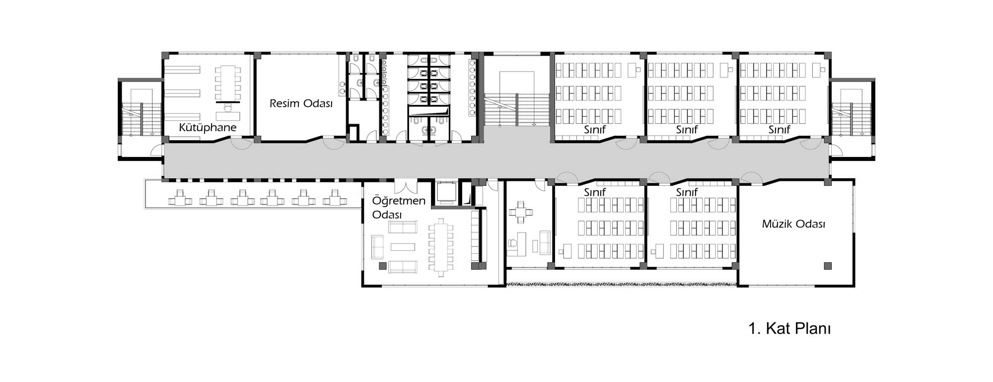
Urla Atatürk İlkokulu
Proje Yeri: Urla, İzmir
Proje Ofisi: Mert Uslu Mimarlık, Modüler Mimarlık
Proje Tipi: İlkokul
Proje Tipi Grubu: Eğitim
Tasarım Ekibi: Mert Uslu, Sedat Dulkadiroğlu, Mustafa Özcan, Nilay Özcan Uslu
İşveren: İzmir İl Özel İdaresi
Ana Yüklenici: İzmir İl Özel İdaresi
Konsept Tasarımı: Mert Uslu Mimarlık
Uygulama Projesi: Mert Uslu Mimarlık, Modüler Mimarlık
Statik Projesi: İsmail Çelik
Mekanik Projesi: Cemal Karakaş
Elektrik Projesi: Bahri Berçin
Proje Başlangıç Yılı: 2013
Proje Bitiş Yılı: 2014
İnşaat Başlangıç Yılı: 2015
İnşaat Bitiş Yılı: 2017
Arsa Alanı: 4,796 m2
Toplam İnşaat Alanı: 4,550 m2