7/14
Paylaş
Resmi Orjinal Boyutunda Göster
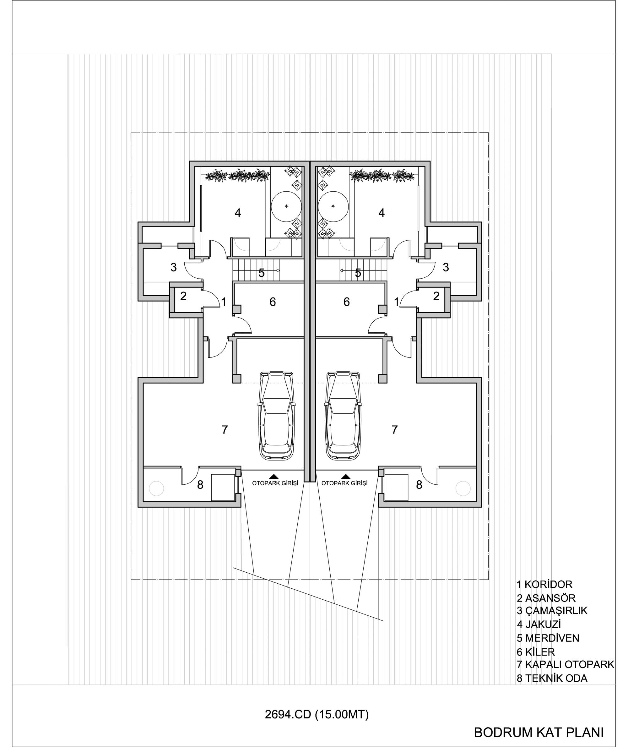
Tezel Evi
Proje Yeri: Ankara, Gölbaşı
Proje Ofisi: Esra Moza Mimarlık Ofisi
Proje Tipi: Tek Ev / Villa
Proje Tipi Grubu: Konut
Tasarım Ekibi: Esra Aydoğan Moza
İşveren: Ahmet Taner Tezel, Ayşe Tezel
Ana Yüklenici: Esra Moza Mimarlık Ofisi
Statik Projesi: Uğur Mirza, KUMM Yapı
Mekanik Projesi: Harun Saçmalı, Tunahanlı Mühendislik
Elektrik Projesi: Seda Demir, Tunahanlı Mühendislik
Tesisat Projesi: Harun Saçmalı, Tunahanlı Mühendislik
Altyapı Projesi: Uğur Mirza, KUMM Yapı
Proje Başlangıç Yılı: 2016
Proje Bitiş Yılı: 2016
İnşaat Başlangıç Yılı: 2017
Arsa Alanı: 690 m2
Toplam İnşaat Alanı: 693 m2