88
8/14
Paylaş
Resmi Orjinal Boyutunda Göster
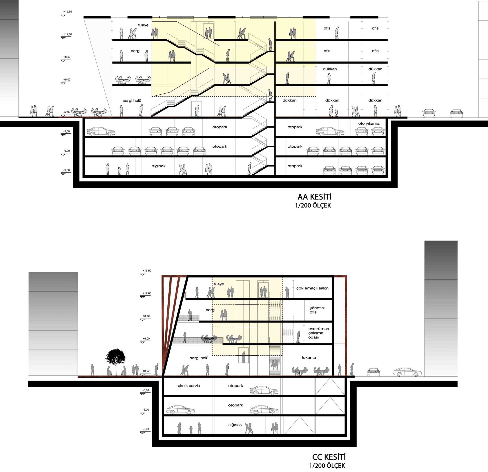
Katılımcı, Merzifon Belediyesi İş ve Yaşam Merkezi Mimari Proje Yarışması
Proje Yeri: Amasya, Merzifon
Proje Tipi: Ofis, Diğer Rekreasyon Yapıları
Proje Tipi Grubu: Katılımcı
Tasarım Ekibi: Ayşe Karabulut, Şafak Kıray, Birol Ercanlı
Danışman: Ayşe Sinem Bayraktar
Yardımcı: Özden Senem Erol