13/21
Paylaş
Resmi Orjinal Boyutunda Göster
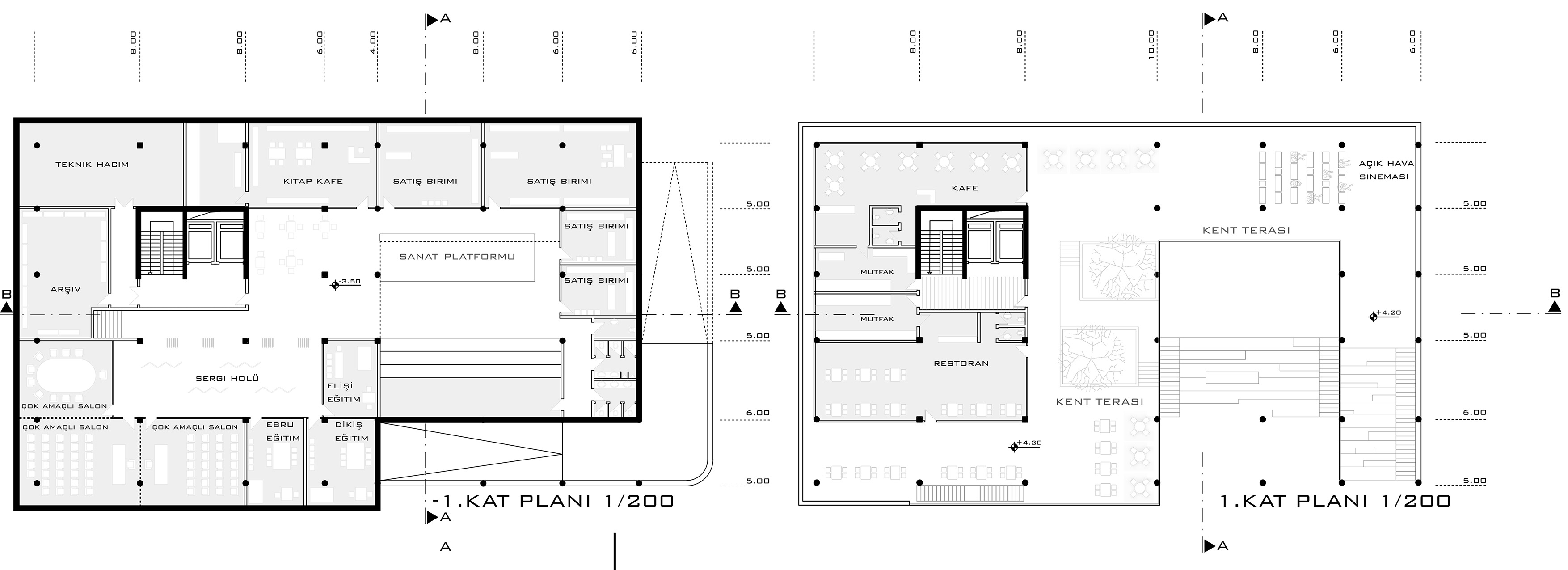
Katılımcı, Merzifon İş Ve Yaşam Merkezi Mimari Proje Yarışması
Proje Yeri: Amasya, Merzifon
Proje Tipi: Ofis, Diğer Rekreasyon Yapıları
Proje Tipi Grubu: Katılımcı
Tasarım Ekibi: Yasin Gümüş, Erkan Teke, İlyas Bakan
Yardımcı: Ferhat Atiç