2/6
Paylaş
Resmi Orjinal Boyutunda Göster
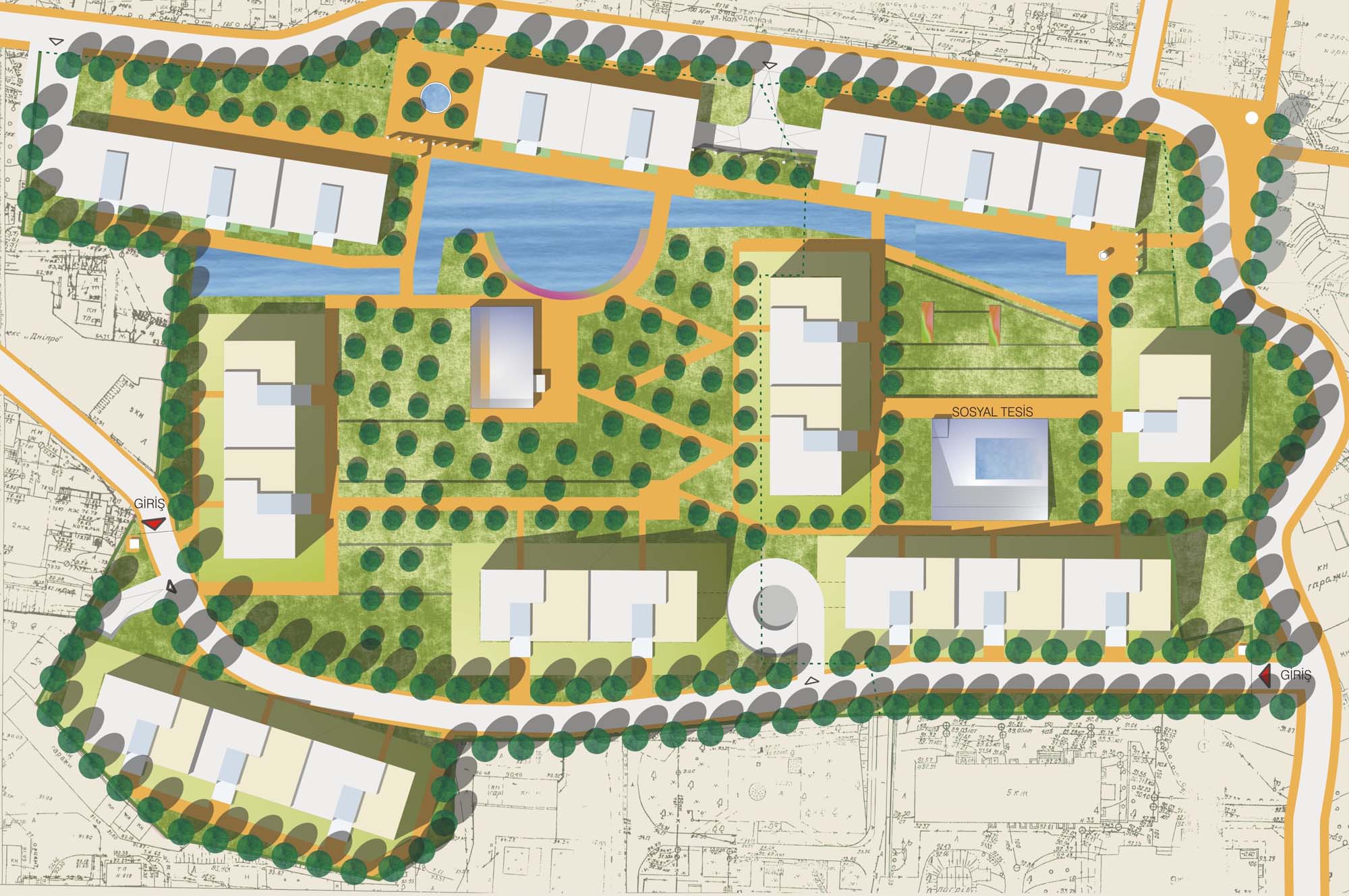
Yeşil Yamaçlar
Proje Yeri: Dnepropetrovsk, Ukrayna
Proje Ofisi: Cemal Mutlu Mimarlık, Mozaik Mimarlık
Proje Tipi: Konut Sitesi / Grubu, Alışveriş Merkezi
Proje Tipi Grubu: Konut, Ticari
Tasarım Ekibi: Cemal Mutlu, Türkiz Özbursalı
Yardımcı: Burcu Ayata, Barbaros Gezerman
Proje Başlangıç Yılı: 2004
Arsa Alanı: 98,000 m²
Toplam İnşaat Alanı: 39,000 m2