16/19
Paylaş
Resmi Orjinal Boyutunda Göster
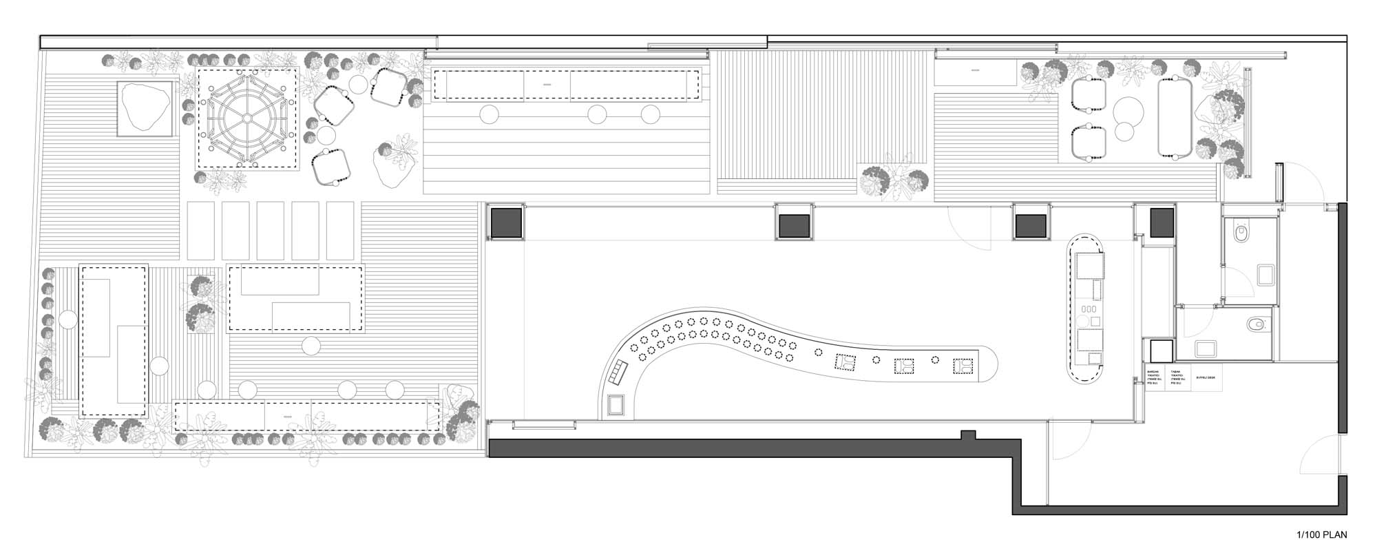
Magnum Pleasure Store İstanbul
Project Location: İstanbul, Kadıköy
Project Office: Wangan
Project Type: Store / Showroom
Proje Tipi Grubu: Commercial
Tasarım Ekibi: Kerem Özerler, Kutay Yorulmaz, Mert Can Uzyıldırım
Employer: Magnum
Ana Yüklenici: Wangan
Photography: Emre Dörter
Construction Site Manager: Mert Can Uzyıldırım
Project Start Date: 2017
Project End Date: 2017
Construction Start Date: 2017
Construction End Date: 2017
Building Plot Area: 800 m2
Total Construction Area: 300 m²