54/57
Paylaş
Resmi Orjinal Boyutunda Göster
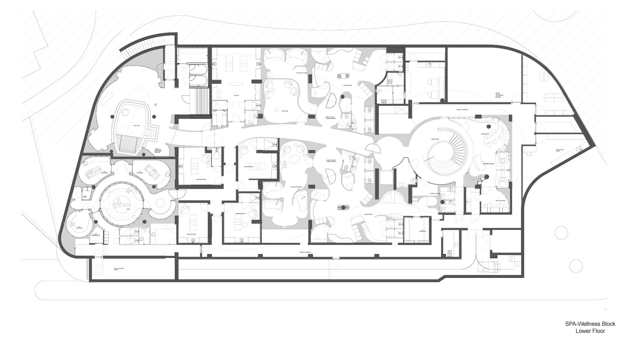
Nikki Beach Resort ve Spa Bodrum
Proje Yeri: Bodrum, Muğla
Proje Ofisi: Global Architectural Development (GAD)
Proje Tipi: Otel / Motel
Proje Tipi Grubu: Konaklama
Tasarım Ekibi: Gökhan Avcıoğlu, Semih Acar, Teoman Başaran, Kerem Demircan, Gülden Acar, Gizem Kıroğlu, Aysu Aysoy, Karun Tugay Candır, Begum Evirgen, Aslı Genç, Yıldız Gergün, Efe İlgen, Tahsin İnanıcı, Müge Tan, Mert Türközü, Şenay Ündemir, Hasan Yaren, Bilgen Dinç, Derya Arpaç
İşveren: Adilbey Holding
Ana Yüklenici: Sistema
Proje Yöneticisi: Gökhan Avcıoğlu
Statik Projesi: Yapı Akademisi
Mekanik Projesi: TASK
Elektrik Projesi: HASKAR
Tesisat Projesi: TASK
Çelik Projesi: Yapı Akademisi
Fotoğraf: Daniel Schäfer
Proje Başlangıç Yılı: 2014
Proje Bitiş Yılı: 2017
İnşaat Başlangıç Yılı: 2014
İnşaat Bitiş Yılı: 2017
Arsa Alanı: 27.500 m2
Toplam İnşaat Alanı: 15.800 m2