10/13
Paylaş
Resmi Orjinal Boyutunda Göster
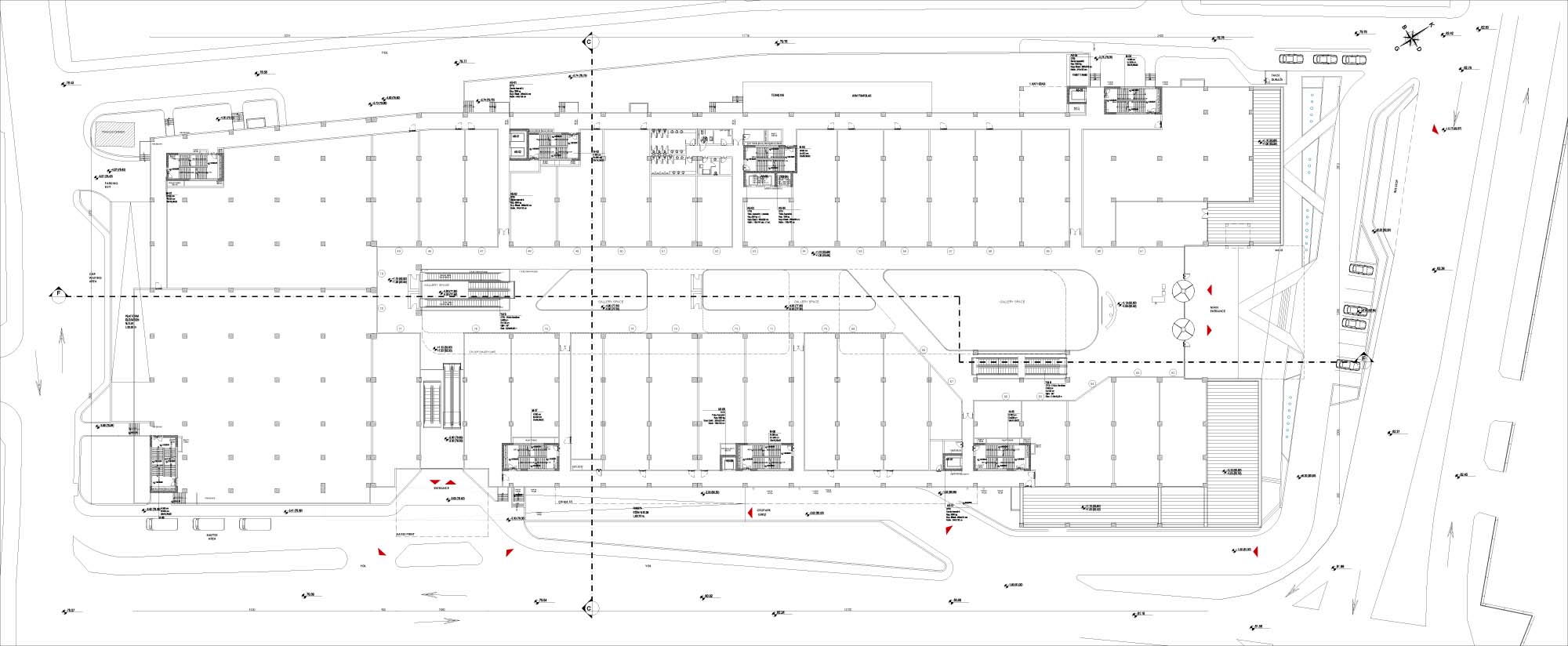
Erasta Edirne AVM
Proje Yeri: Edirne
Proje Ofisi: Sabri Paşayiğit Architects
Proje Tipi: Alışveriş Merkezi
Proje Tipi Grubu: Ticari
Tasarım Ekibi: Sabri Paşayiğit, Erman Özdemir, Şeyda Onarer, Nida Güngören
İşveren: Eroğlu İnşaat
Danışman: JLL, Axis
Yardımcı: Murat Tekeli, Selinnur Dinleyici, Kevser Kayacık
Ana Yüklenici: Eroğlu İnşaat
Proje Yöneticisi: Sabri Paşayiğit
Aydınlatma Projesi: Tepta Aydınlatma
Grafik Tasarım: Innova
Statik Projesi: Sigma
Mekanik Projesi: ABC proje
Elektrik Projesi: Elektrika
Tesisat Projesi: ABC proje
Çelik Projesi: Sigma
Altyapı Projesi: ABC proje
Maket: ARC Maket
Proje Başlangıç Yılı: 2015
İnşaat Başlangıç Yılı: 2015, 2015
İnşaat Bitiş Yılı: 2017
Arsa Alanı: 20,704 m2
Toplam İnşaat Alanı: 96.188 m2