13/13
Paylaş
Resmi Orjinal Boyutunda Göster
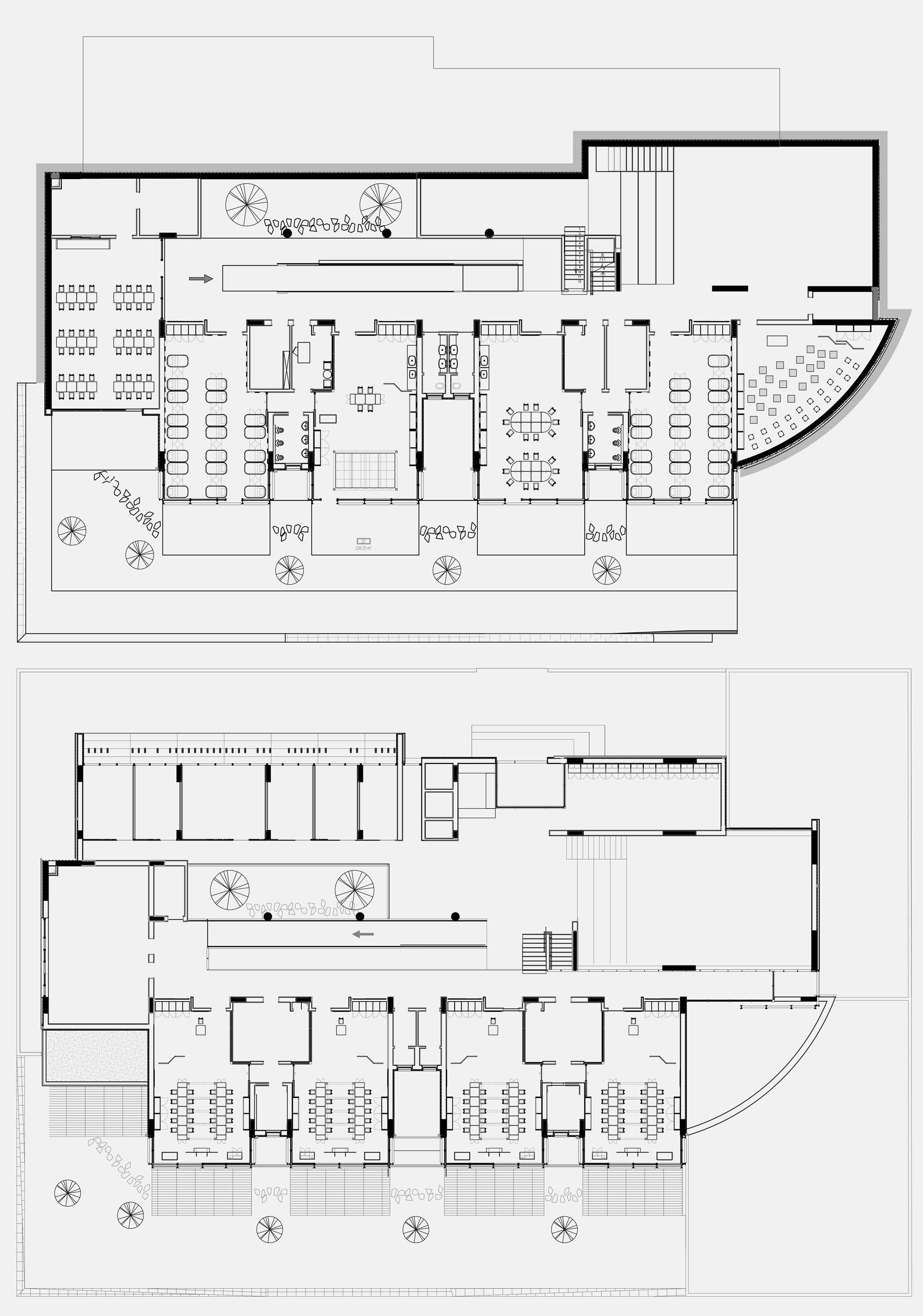
Ordu Üniversitesi Çocuk Yuvası İç Mekan Tasarımı
Proje Yeri: Altınordu, Ordu
Proje Ofisi: Escapefromsofa
Proje Tipi: Anaokulu / Kreş
Proje Tipi Grubu: Eğitim
Tasarım Ekibi: Mahmut Kefeli, Kerem Erçin, Emre Meriç, Orkun Çağlar Sanverdi, Alper Değer
Fotoğraf: İbrahim Özbunar
Proje Başlangıç Yılı: 2017
Proje Bitiş Yılı: 2017
İnşaat Başlangıç Yılı: 2017
İnşaat Bitiş Yılı: 2017
Toplam İnşaat Alanı: 2000 m²