30/70
Paylaş
Resmi Orjinal Boyutunda Göster
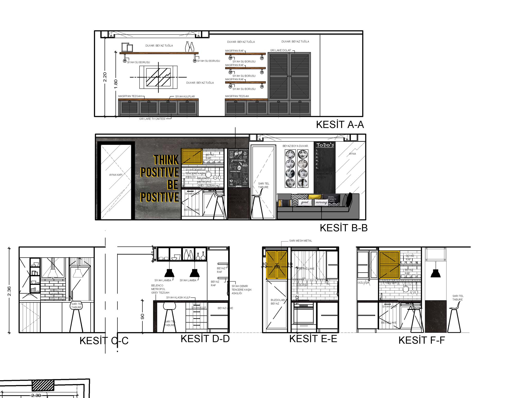
Kampüshane İstanbul
Proje Yeri: Eyüpsultan, İstanbul
Proje Ofisi: Renda Helin Design
Proje Tipi: Yurt / Konukevi
Proje Tipi Grubu: Konaklama
Tasarım Ekibi: Renda Helin Çilalioğlu Çizer
İşveren: Emre Group
Yardımcı: Begüm Batur, Çağrı Çelik, Hale Betül Güleç
Ana Yüklenici: Emre Group
Fotoğraf: Furkan Uyan
Proje Başlangıç Yılı: 2016
Proje Bitiş Yılı: 2017
İnşaat Başlangıç Yılı: 2017
İnşaat Bitiş Yılı: 2018
Arsa Alanı: 1,000 m²
Toplam İnşaat Alanı: 6,500 m²