2/16
Paylaş
Resmi Orjinal Boyutunda Göster
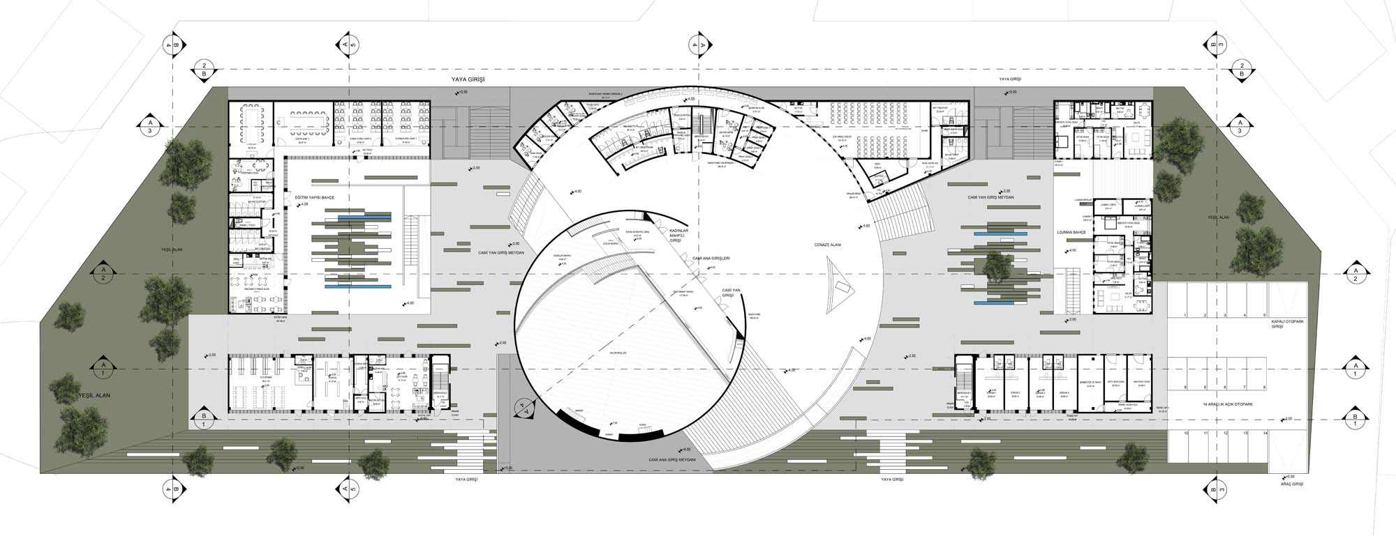
Cami Tasarımı Fikir Yarışması
Proje Yeri: Mardin
Proje Ofisi: Boytorun Mimarlık
Proje Tipi: Cami / Mescit
Proje Tipi Grubu: Katılımcı
Tasarım Ekibi: Semih Boytorun, Yudum Boytorun, Beril Uzaldı, Sezgin Yılmaz, Mehmet Fatih Çınar, İzzet Filizer, Mete Akkaya, Hande Şanlımeşhur