25/35
Paylaş
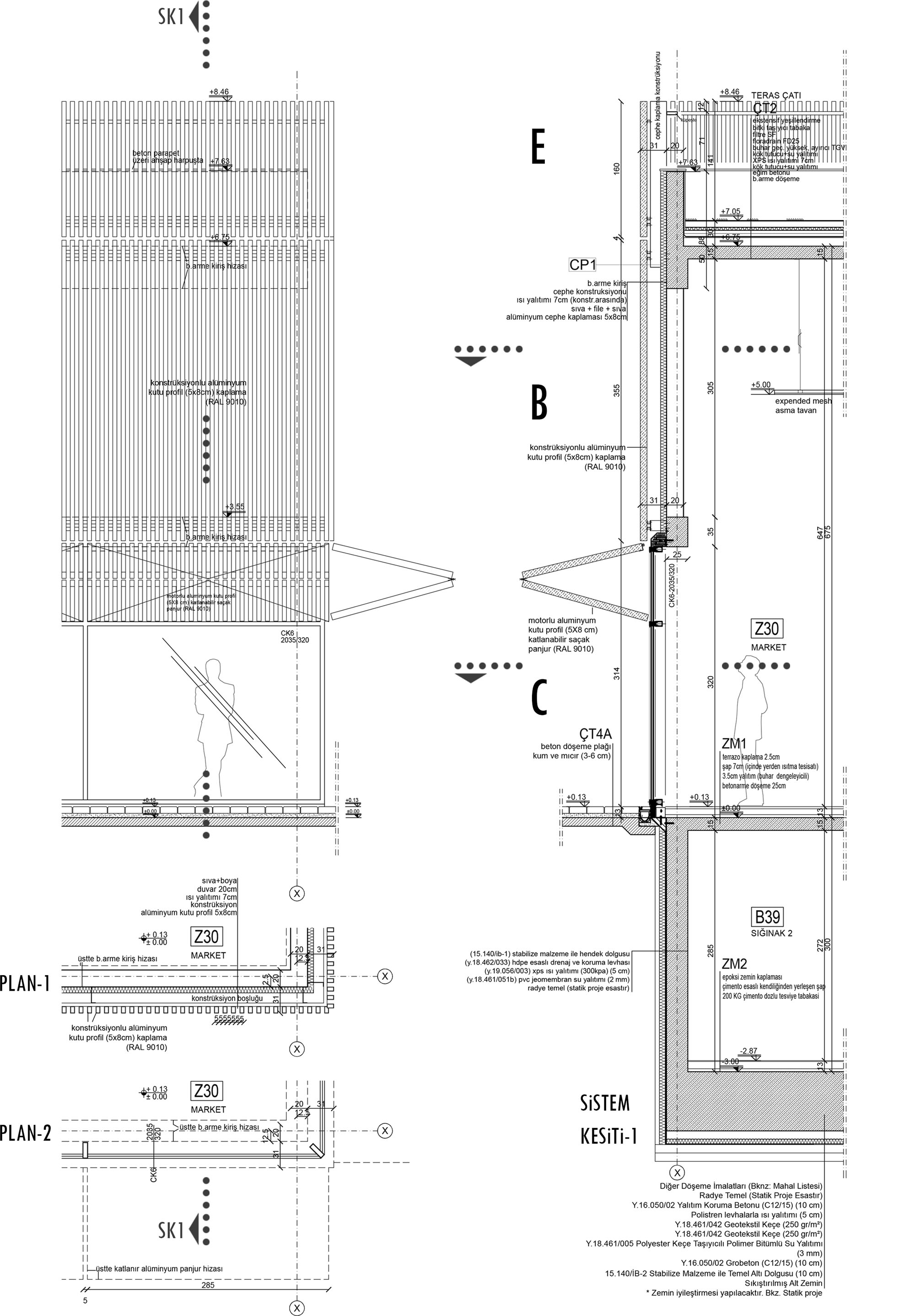
Resmi Orjinal Boyutunda Göster
Turgutreis Yaşam Merkezi
Proje Yeri: Bodrum
Proje Ofisi: Bcn Design Studio
Tasarım Ekibi: Atıl Beçin, Susanne Boss
Mimari Proje Ekibi: Susanne Boss, Atıl Beçin, Cemil Uzunköprü, Altan Günvaran
İşveren: Muğla Büyükşehir Belediyesi
Danışman: Eşber Yahyabeyoğlu, Soner Şimşek
Ana Yüklenici: Lik Yapı İnşaat
Peyzaj Mimarlığı: Bcn Design Studio
İç Mekan Projesi: Bcn Design Studio
Proje Yöneticisi: Atıl Beçin
Konsept Tasarımı: Bcn Design Studio
Uygulama Projesi: Bcn Design Studio
Cephe Tasarımı: Bcn Design Studio
Aydınlatma Projesi: Matrix
Grafik Tasarım: Susanne Boss
Statik Projesi: AG Proje
Mekanik Projesi: Değer Mühendislik
Elektrik Projesi: AG Proje, Ege Mühendislik
Tesisat Projesi: AG Proje, Ege Mühendislik
Proje Başlangıç Yılı: 2017
Proje Bitiş Yılı: 2018
İnşaat Başlangıç Yılı: 2019
İnşaat Bitiş Yılı: 2022
Arsa Alanı: 8630 m2
Toplam İnşaat Alanı: 7833 m2