28/34
Paylaş
Resmi Orjinal Boyutunda Göster
IzQ
Proje Yeri: İzmir
Proje Ofisi: ofisvesaire
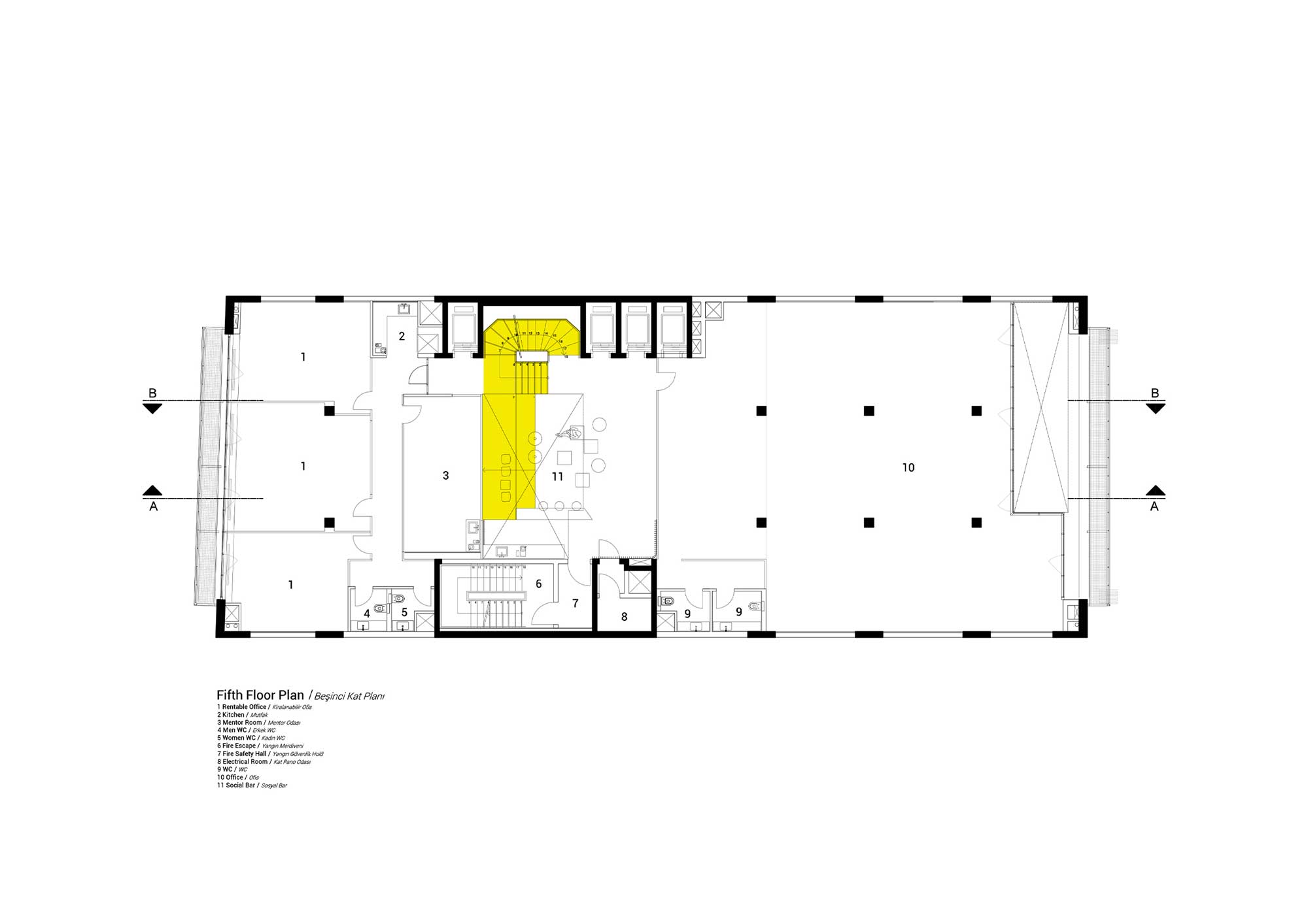
Proje Tipi: Ofis
Tasarım Ekibi: Melis Varkal, Mustafa Gökhan Çelikağ, Buğra Eser, Kerem Yeşildağ, Alpay Demirci, Erenus Atilla, Dilşad Kurdak, Hande Kocabaş, Mehmet Hepaksaz
İşveren: İzmir Ticaret Odası (İZTO)
Proje Yöneticisi: Mustafa Gökhan Çelikağ, Melis Varkal, Mine Acar
Fotoğraf: Zeren + Mehmet Yasa Photography
İnşaat Başlangıç Yılı: 2021
İnşaat Bitiş Yılı: 2022