28/29
Paylaş
Resmi Orjinal Boyutunda Göster
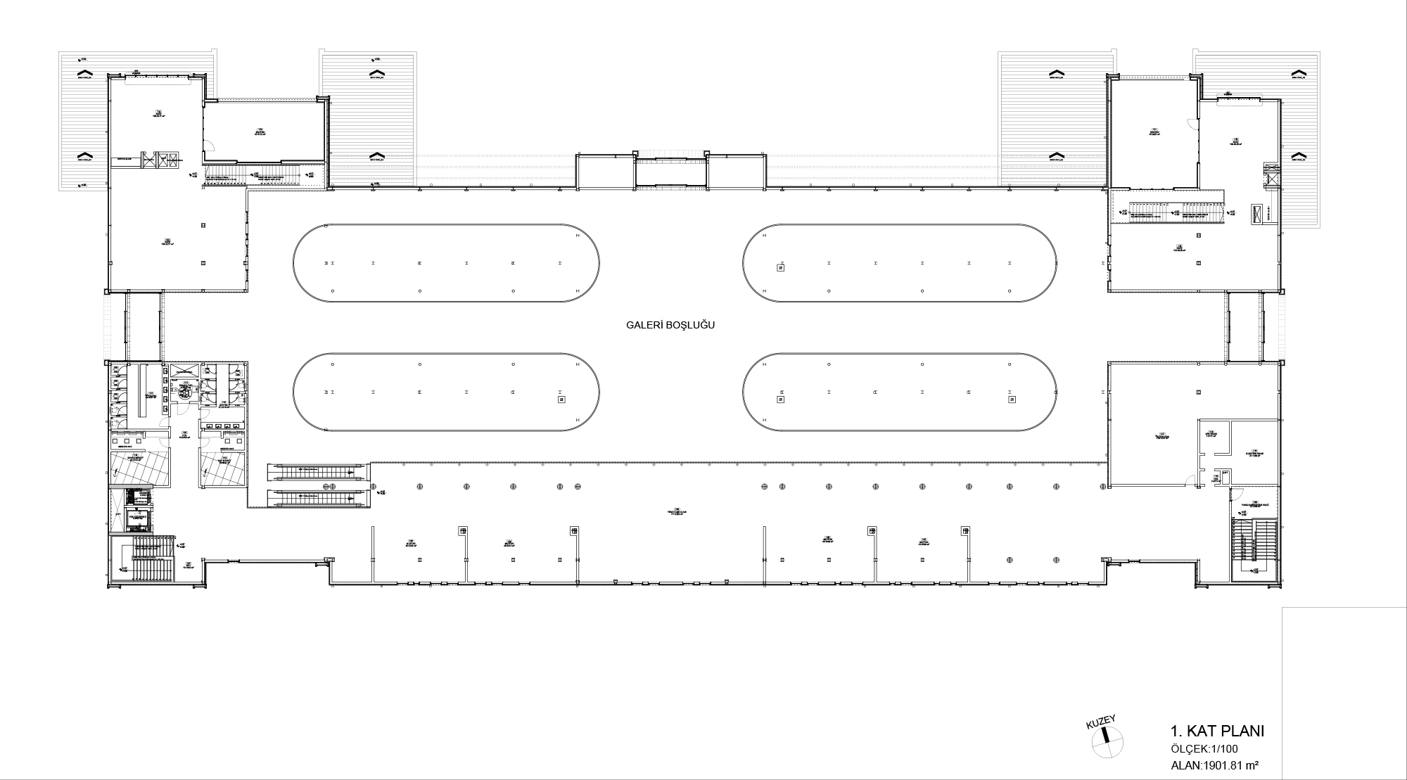
Carsi Melikgazi
Proje Yeri: Melikgazi, Kayseri
Proje Ofisi: Plan3 Tasarım
Tasarım Ekibi: Musa Köse
İşveren: Melikgazi Belediyesi
Ana Yüklenici: Musa Köse
Proje Başlangıç Yılı: 2021
Proje Bitiş Yılı: 2023
İnşaat Başlangıç Yılı: 2022
İnşaat Bitiş Yılı: 2024
Arsa Alanı: 6.467,66 m²
Toplam İnşaat Alanı: 6.327 m²