56/58
Paylaş
Resmi Orjinal Boyutunda Göster
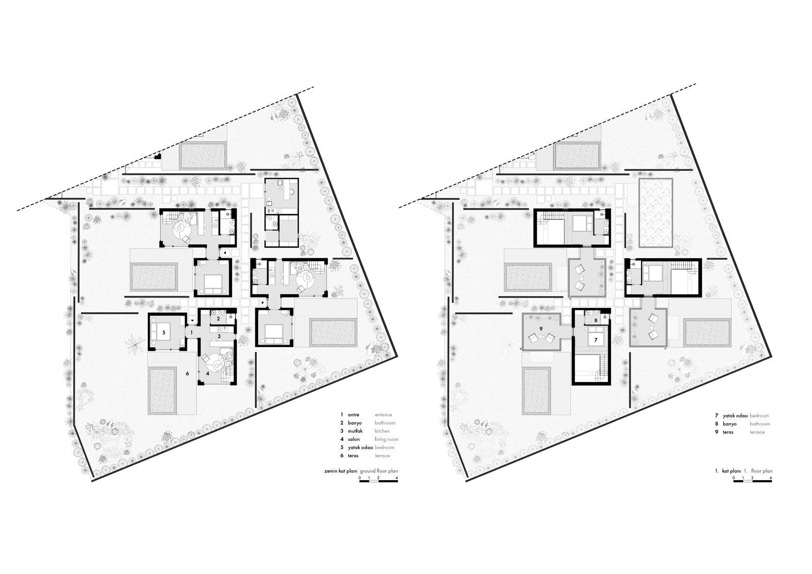
KLEE Sapanca
Proje Yeri: Sapanca, Adapazarı (Sakarya)
Proje Ofisi: the | work
Proje Tipi Grubu: Konut, Konut Sitesi / Grubu
Tasarım Ekibi: Büşra Koçak, Berk Arinç, Güliz Damla Çınar
Yardımcı: Hande Özdemir
Ana Yüklenici: the | work
Proje Başlangıç Yılı: 2023
İnşaat Bitiş Yılı: 2025
Toplam İnşaat Alanı: 650 m²