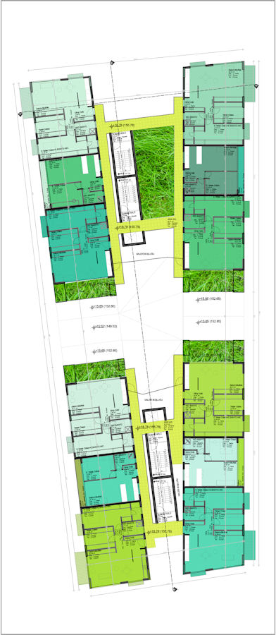
Plan
8/9
Paylaş
Resmi Orjinal Boyutunda Göster
Garage Yenidoğan
Proje Yeri: Sancaktepe, İstanbul
Proje Ofisi: MeMA ve merteyiler
Proje Tipi: Apartman
Tasarım Ekibi: Mert Eyiler
İşveren: Garage İnşaat ve Ticaret A.Ş.
Yardımcı: İrem Güçlü, Mehmet Ali Yılmaz
Peyzaj Mimarlığı: MeMA ve merteyiler
İç Mekan Projesi: MeMA ve merteyiler
Proje Yöneticisi: Mert Tiber
Statik Projesi: Statica, Cem Özer
Mekanik Projesi: Deniz Mühendislik, Ahmet Boybada
Elektrik Projesi: STM, Kerem Tunçer
Proje Başlangıç Yılı: 2011
Arsa Alanı: 7.046.41 m²
Toplam İnşaat Alanı: 10.569.03 m²