36/39
Paylaş
Resmi Orjinal Boyutunda Göster
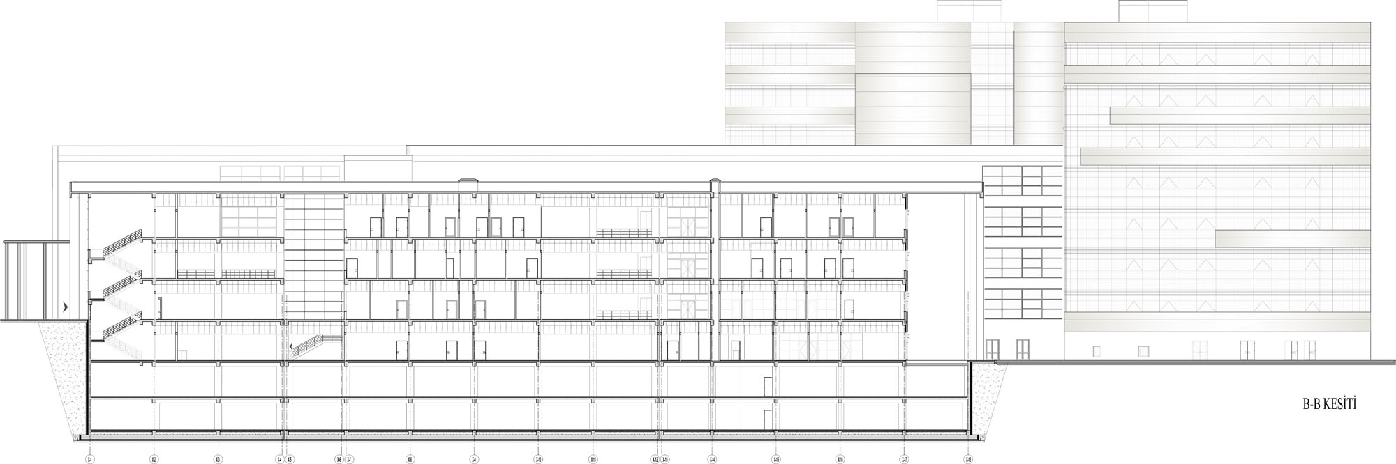
Karabük 300 Yataklı Devlet Hastanesi
Proje Yeri: Karabük
Proje Ofisi: Peb Mimarlık
Proje Tipi: Hastane / Poliklinik
Tasarım Ekibi: Perin Özen Öztürker, Ebru Gündoğdu Altay
İşveren: Sağlık Bakanlığı
Yardımcı: Semra Köse, Hamza Altın
Ana Yüklenici: Çakır İnşaat
Peyzaj Mimarlığı: UBMS Proje Yönetimi
İç Mekan Projesi: Peb Mimarlık
Proje Yöneticisi: Peb Mimarlık
Aydınlatma Projesi: Süreç Elektrik Proje
Statik Projesi: Denge Mühendislik
Mekanik Projesi: İlke Mühendislik
Elektrik Projesi: Süreç Elektrik Proje
Tesisat Projesi: İlke Mühendislik
Proje Başlangıç Yılı: Ocak 2010
Proje Bitiş Yılı: Aralık 2010
İnşaat Başlangıç Yılı: Ağustos 2010
Arsa Alanı: 35.599 m²
Toplam İnşaat Alanı: 74.438 m²