Vaziyet
24/24
Paylaş
Resmi Orjinal Boyutunda Göster
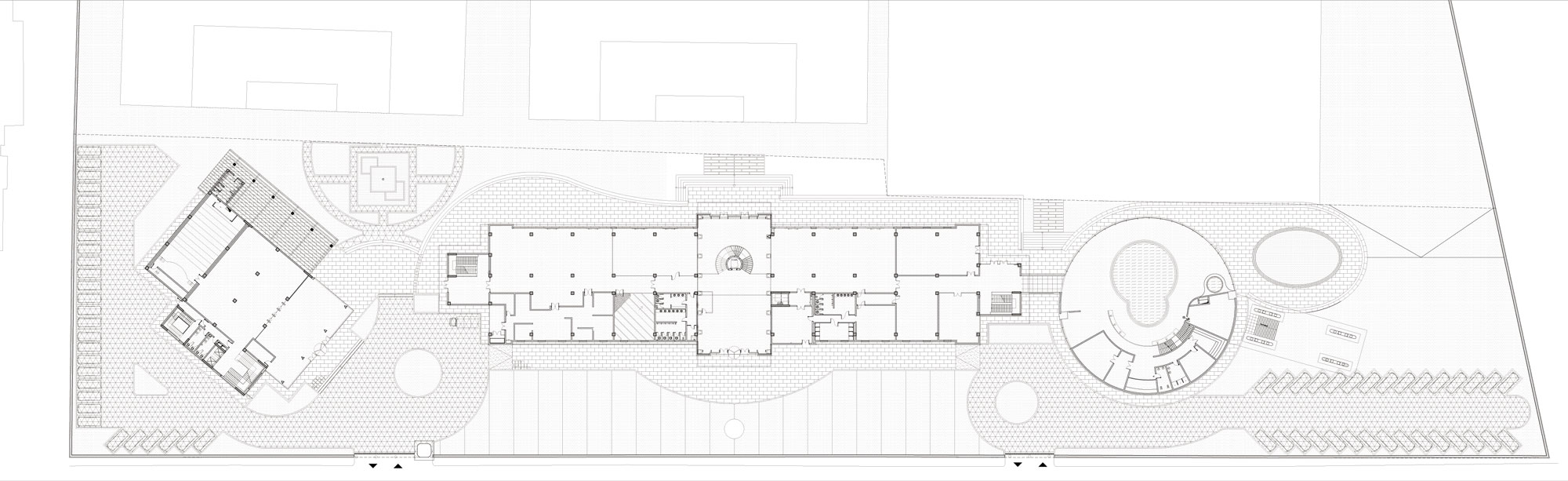
Kayseri Spor Tesisleri
Proje Yeri: Kayseri
Proje Ofisi: Sabri Paşayiğit Architects
Proje Tipi: Spor Salonu
Tasarım Ekibi: Sabri Paşayiğit, Ertuğ Yenidemir, Fatma Sert
İşveren: Kayseri Spor Kulübü
Yardımcı: Betonarme, Çelik
Statik Projesi: Kongu Yapı
Mekanik Projesi: Metsis
Elektrik Projesi: Sıla Mühendislik
Fotoğraf: Sabri Paşayiğit
Proje Başlangıç Yılı: 2007
Proje Bitiş Yılı: 2007
İnşaat Başlangıç Yılı: 2008
Arsa Alanı: 30.000 m2
Toplam İnşaat Alanı: 15.000 m2