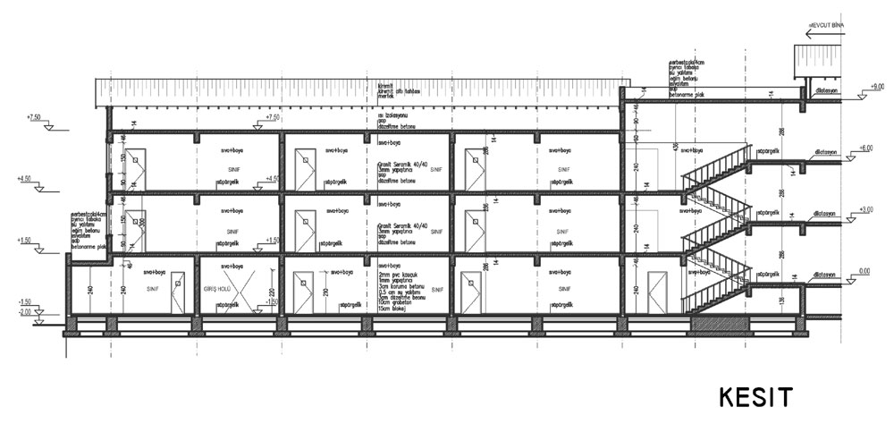
Kesit
14/14
Paylaş
Resmi Orjinal Boyutunda Göster
Kırklareli Atatürk İlköğretim Okulu Bahtiyar Yılmazer Ek Hizmet Binası
Proje Yeri: Kırklareli
Proje Ofisi: KG Mimarlık
Proje Tipi: İlkokul
Tasarım Ekibi: Kurtul Erkmen
İşveren: Yıldız Yılmazer
Yardımcı: Banu Satıbol, Burcu Çekli, F.Eren Günal
Proje Başlangıç Yılı: 2006
Proje Bitiş Yılı: 2006
İnşaat Başlangıç Yılı: 2006
İnşaat Bitiş Yılı: 2007
Arsa Alanı: 11.000 m²
Toplam İnşaat Alanı: 1.700 m2