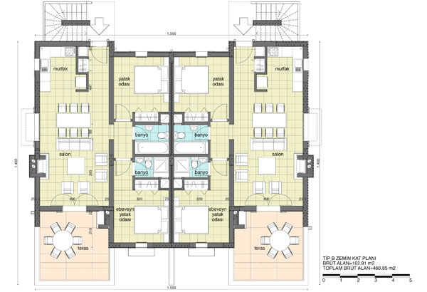
B Tipi Zemin Kat Planı
32/40
Paylaş
Resmi Orjinal Boyutunda Göster
Ottoman Life Konak Evleri
Proje Yeri: Bodrum, Muğla, Turgutreis
Proje Ofisi: Kural Mimarlar
Proje Tipi: Sosyal Tesis, Konut Sitesi / Grubu
Proje Tipi Grubu: Konut
Tasarım Ekibi: İlhan Selim Kural, Nerkis Kural, Tuğba Özbay, Selçuk Köse, Tansu Yılmaz
İşveren: Ottoman Life Gayrimenkul Alım-Satım, İnşaat, Turizm ve Ticaret Ltd.Şti.
Proje Başlangıç Yılı: 2006
Proje Bitiş Yılı: 2007
İnşaat Başlangıç Yılı: 2006
İnşaat Bitiş Yılı: 2007
Arsa Alanı: 5.309 m²