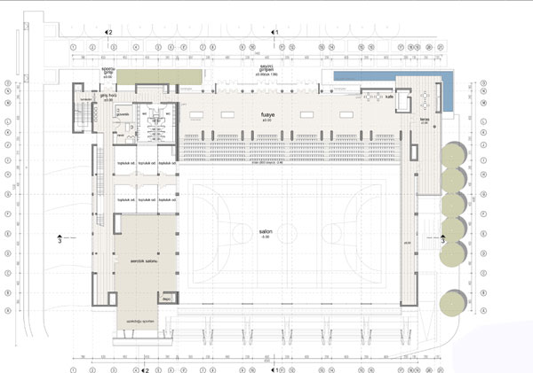
Kapalı Spor Salonu
28/32
Paylaş
Resmi Orjinal Boyutunda Göster
ODTÜ Kuzey Kıbrıs Kampüsü Kapalı Spor Salonu, Yüzme Havuzu ve Giriş Kapısı
Proje Yeri: Güzelyurt, Kuzey Kıbrıs Türk Cumhuriyeti (KKTC)
Proje Ofisi: Baobab Mimarlık
Proje Tipi: Spor Salonu, Kapalı Yüzme Havuzu
Tasarım Ekibi: Meral Özdengiz Başak, Eren Başak, Uğur Katırcı, Kevser Tarakçı
İşveren: Orta Doğu Teknik Üniversitesi (ODTÜ) Rektörlüğü
Proje Başlangıç Yılı: 2004
Proje Bitiş Yılı: 2005
İnşaat Başlangıç Yılı: 2005
İnşaat Bitiş Yılı: 2007