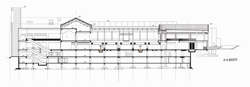
KESIT A-A
45/52
Paylaş
Resmi Orjinal Boyutunda Göster
Forum Kapadokya Alışveriş Merkezi
Proje Yeri: Nevşehir, Kapadokya
Proje Ofisi: ERA Şehircilik Mimarlık
Proje Tipi: Alışveriş Merkezi
Tasarım Ekibi: Ali Hızıroğlu
İşveren: Multi Turkmall
Yardımcı: Sevil Özbayburtlu Balcı, Funda Erdemli, Derya Erdoğan, Elif Özil, Ayşe Aydınlı
Proje Başlangıç Yılı: 2007
Proje Bitiş Yılı: 2009
İnşaat Başlangıç Yılı: 2008
İnşaat Bitiş Yılı: 2009
Arsa Alanı: 26.650 m²
Toplam İnşaat Alanı: 65.000 m²