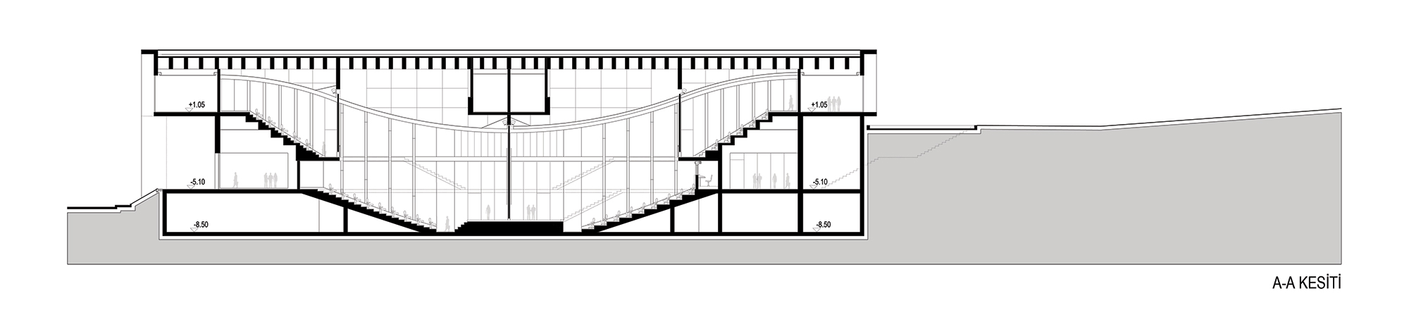
Kesit
23/35
Paylaş
Resmi Orjinal Boyutunda Göster
Bolu Abant İzzet Baysal Üniversitesi Kongre Merkezi
Fotoğraflar: Erdal Sorgucu, Orhan Özgülbaş
Proje Yeri: Bolu
Proje Ofisi: Atölye E Mimarlık
Proje Tipi: Kongre Merkezi, Üniversite Kampüsü
Tasarım Ekibi: Erdal Sorgucu
Danışman: Mezzo Stüdyo
Yardımcı: Seçkin Akşit
Statik Projesi: Emin Aldemir
Fotoğraf: Erdal Sorgucu, Orhan Özgülbaş
Proje Başlangıç Yılı: 2008
İnşaat Başlangıç Yılı: 2009
İnşaat Bitiş Yılı: 2011
Arsa Alanı: 6.800 m²
Toplam İnşaat Alanı: 7.388 m²