Plan
12/15
Paylaş
Resmi Orjinal Boyutunda Göster
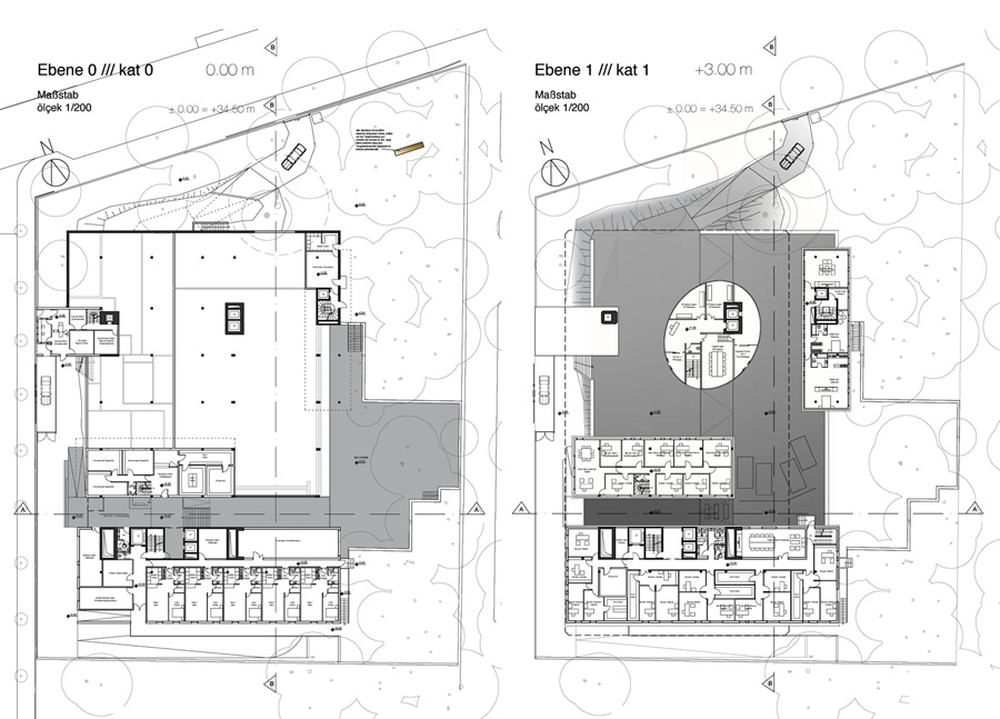
5. Eşdeğer Ödül, TC Berlin Büyükelçiliği Kançılarya Binası Uluslararası Mimari Proje Yarışması
Project Location: Berlin, Almanya
Project Type: Embassy / Consulate
Proje Tipi Grubu: Eşdeğer Ödül
Tasarım Ekibi: Burçak Pekin, Emir Drahşan
Employer: Dışişleri Bakanlığı
Yardımcı: Natalie Ziesemer, İnes Koenigsmann, Wolfgang Kruse
Structural Project: Wetzel & von Seht
Mechanical Project: Wichmann Gmbh
Project Start Date: 2007
Project End Date: 2007
Building Plot Area: 7.500 m2
Total Construction Area: 12.000 m2