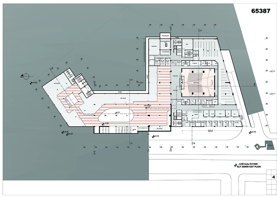
Pafta
11/17
Paylaş
Resmi Orjinal Boyutunda Göster
Katılımcı, Kahramanmaraş Belediye Başkanlığı Hizmet Binasi Ulusal Mimari Proje Yarışması
Proje Yeri: Kahramanmaraş
Proje Ofisi: Turim Mimarlık
Proje Tipi: Belediye Hizmet Binası
Proje Tipi Grubu: Katılımcı
Tasarım Ekibi: Kemal Demir, Ozan N. Binboğa, Kıtay Durmuş
Proje Başlangıç Yılı: 2006
Proje Bitiş Yılı: 2006
Arsa Alanı: 10.500 m2
Toplam İnşaat Alanı: 39.633 m²