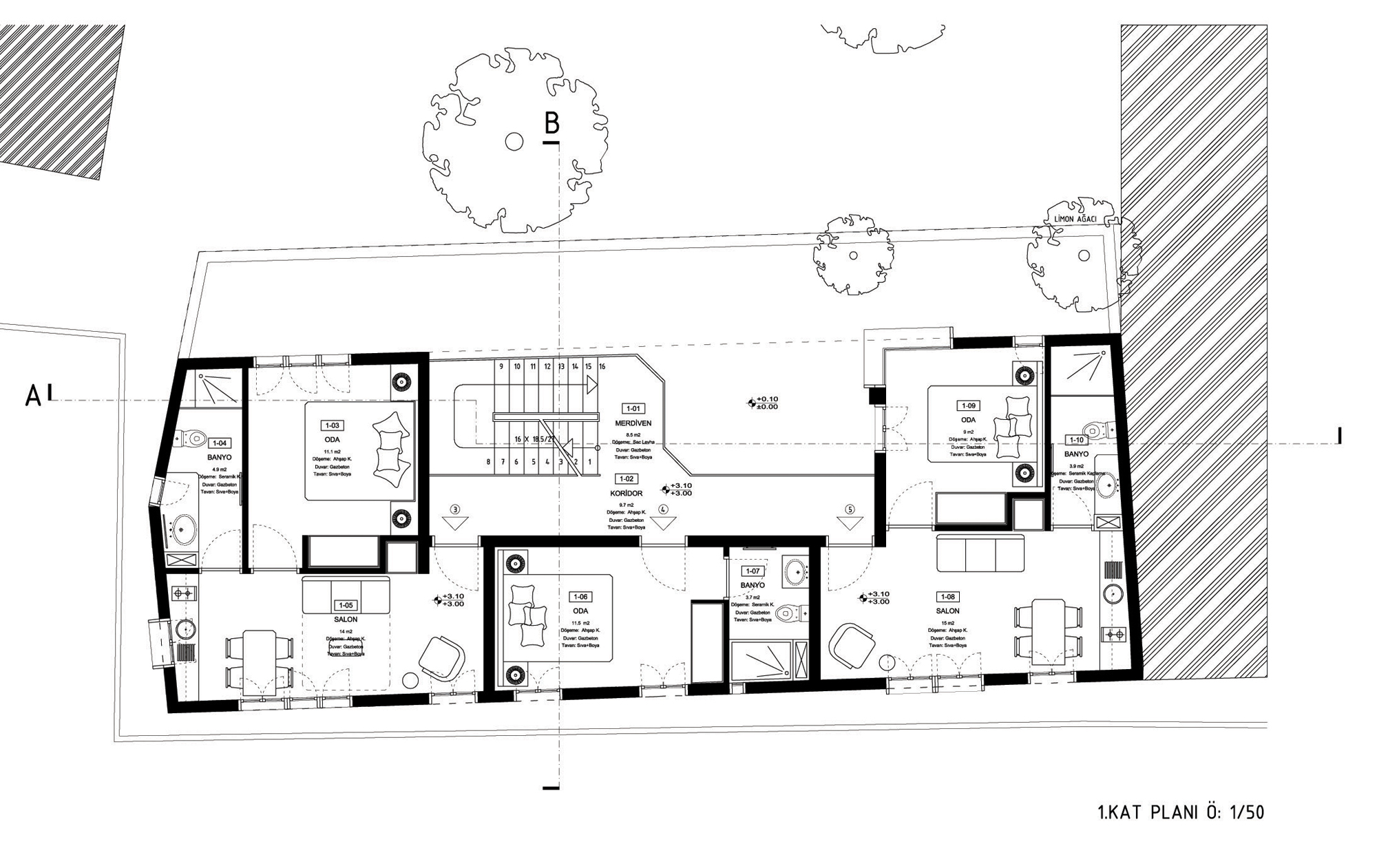
Plan
20/24
Paylaş
Resmi Orjinal Boyutunda Göster
Mare Nostrum Apart Otel
Proje Yeri: Kaş, Antalya
Proje Ofisi: GBMM
Proje Tipi: Otel / Motel
Tasarım Ekibi: Emrah Demir, Süleyman Salih Başbay
Ana Yüklenici: Abdurrahman Öncü
Peyzaj Mimarlığı: Emrah Demir, Süleyman Salih Başbay, Hasan Öncü
İç Mekan Projesi: Emrah Demir, Süleyman Salih Başbay, Hasan Öncü
Mekanik Projesi: Taner Tazegül
Proje Başlangıç Yılı: 2012
Proje Bitiş Yılı: 2013
İnşaat Başlangıç Yılı: 2013
İnşaat Bitiş Yılı: 2013
Arsa Alanı: 150 m2
Toplam İnşaat Alanı: 460 m²