28/35
Paylaş
Resmi Orjinal Boyutunda Göster
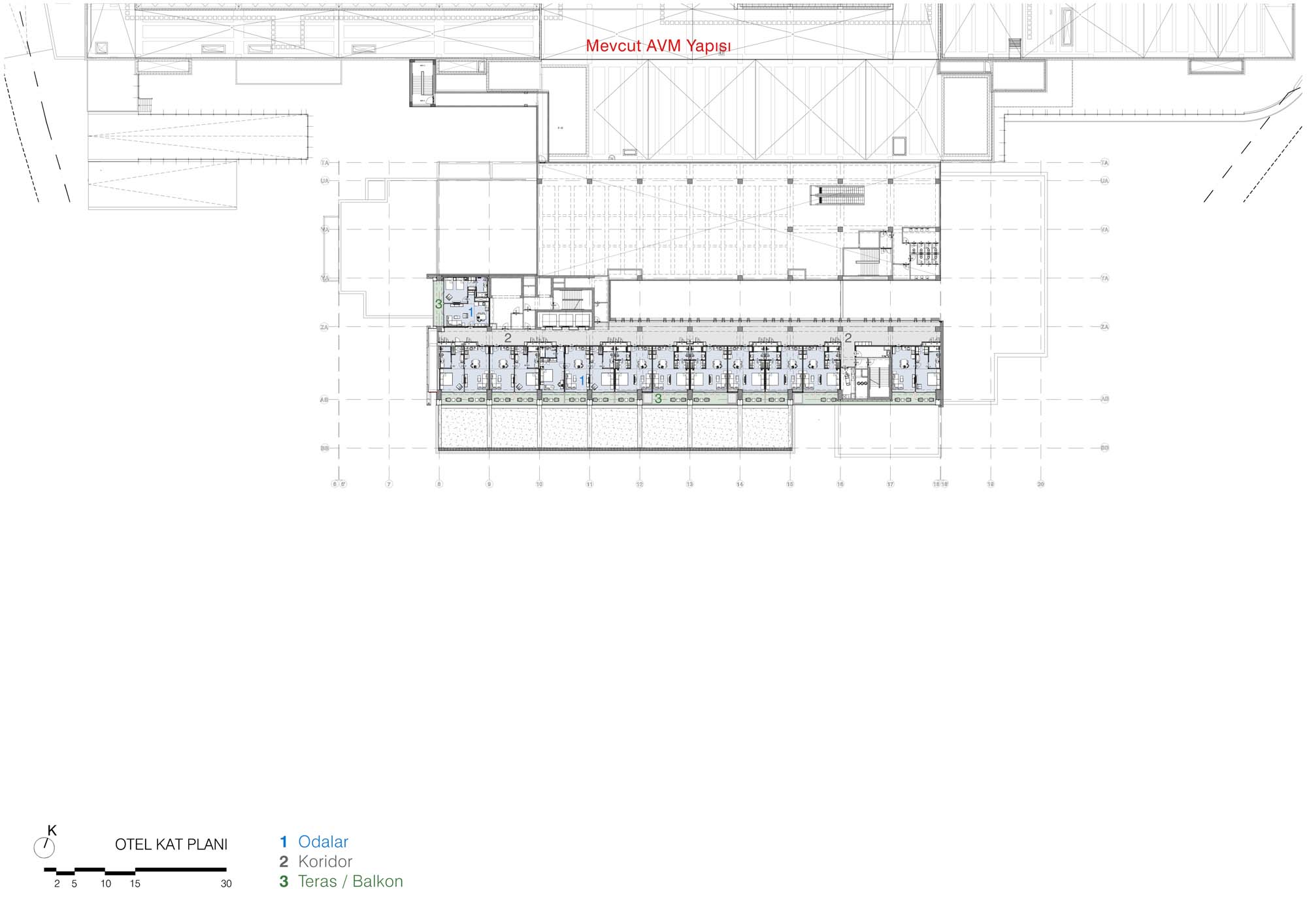
Hyatt House
Project Location: Gebze, İstanbul
Project Office: CM Mimarlık
Project Type: Hotel / Motel
Proje Tipi Grubu: Konaklama
Tasarım Ekibi: Cem Sorguç
Employer: Doğuş Gayrimenkul Yatırım Ortaklığı
Consultant: CWG Danışmanlık, Etik Mühendislik, Yöner Mühendislik, Proses Mühendislik, Otimsan
Yardımcı: Amina Rezoug, Elvan Çakıt, Tutku Sevinç, Gizay Özüm, Ege Adaş, Serra Ayhan, Tolga Yağlı
Ana Yüklenici: yeni teknik yapı
Peyzaj Mimarlığı: MEDOSA
Lighting Project: NA Light Design
Structural Project: MPI Mühendislik
Mechanical Project: Beta Teknik
Electrical Project: FDC Elektrik
Akustik Projesi: Duyal Karagözoğlu
Photography: Cemal Emden, Cem Sorguç
Project Start Date: 2013
Project End Date: 2015
Construction Start Date: 2015
Construction End Date: 2017
Building Plot Area: 8,800 m2
Total Construction Area: 52,000 m2