15/31
Paylaş
Resmi Orjinal Boyutunda Göster
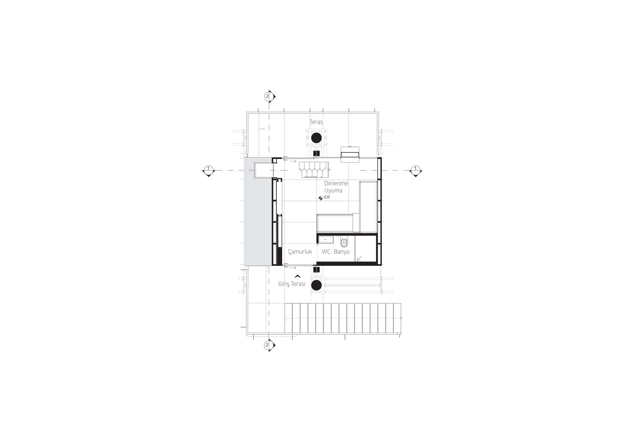
Bölüklü Yaylası Rehabilitasyon Merkezi
Proje Yeri: Zonguldak, Devrek
Proje Ofisi: FREA
Proje Tipi: Otel / Motel
Proje Tipi Grubu: Konaklama
Tasarım Ekibi: Fatih Yavuz, Ömer Emre Şavural
İşveren: Zonguldak Valiliği
Yardımcı: Hasan Hüseyin Özdurmuş, Kubilay Sahinler, Meryem Topdaş, Sema Çağlayan, İbrahim Yavuz, Melih Tokaç
Proje Başlangıç Yılı: 2018