5/43
Paylaş
Resmi Orjinal Boyutunda Göster
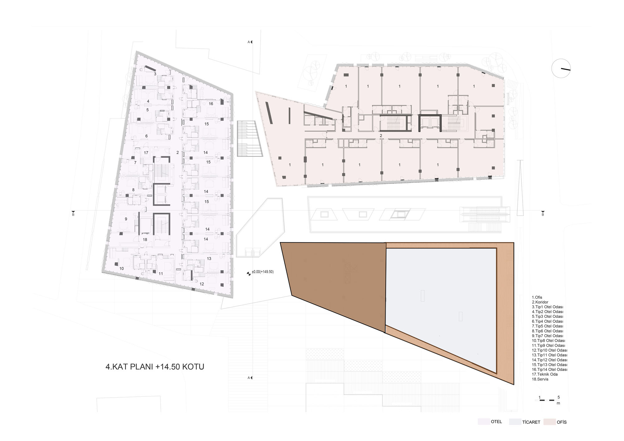
Balıkesir Ticaret Merkezi
Proje Yeri: Balıkesir
Proje Ofisi: PDG Mimarlar
Tasarım Ekibi: Murat Şahin
Mimari Proje Ekibi: Murat Şahin, Cengiz Gültek, Ayhan Öçkaç, Soner Bilgin, Anna Cojocar, Buket Altıntaş, Burcu Köseoğlu, Doğacan Gül, Selda Süzgün, Miray Çağlar
İşveren: Gönil İnşaat
Statik Projesi: Tektaş Mühendislik İnşaat
İnşaat Başlangıç Yılı: 2019
Toplam İnşaat Alanı: 38.812 m²