41/43
Paylaş
Resmi Orjinal Boyutunda Göster
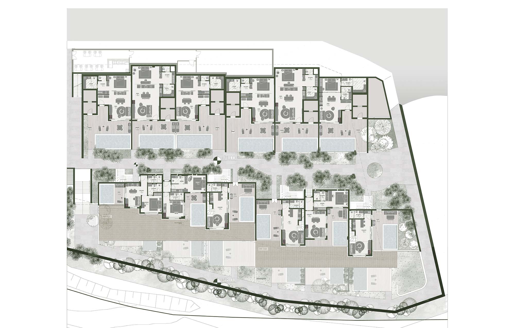
Radisson BLU Kaş
Proje Yeri: Antalya, Kaş
Proje Ofisi: Yeşim Kozanlı Architecture
Tasarım Ekibi: Fulya Türközü, Nida Tunç, Akif Ekinci, Nurbanu Çakmakçı Özel, Zeynep Tuğçe Uzun, Yeşim Kozanlı
Mimari Proje Ekibi: Öznur Çağlayan, Hilal Bozkan
İşveren: MK Group
Ana Yüklenici: İnkaş İnşaat
Peyzaj Mimarlığı: Tülay Tosun Design Studio
İç Mekan Projesi: Yeşim Kozanlı Architecture
Proje Yöneticisi: Yeşim Kozanlı
Konsept Tasarımı: Yeşim Kozanlı Architecture
Uygulama Projesi: İnkaş İnşaat
Cephe Tasarımı: Öznur Çağlayan Architects
Statik Projesi: Güvengiz Mühendislik, Engiz Mühendislik
Mekanik Projesi: Tomay Mühendislik
Elektrik Projesi: Şengök Mühendislik
Fotoğraf: İbrahim Özbunar
Mimari Mesleki Kontrollük: Yeşim Kozanlı Architecture, Öznur Çağlayan Architects
Şantiye Yöneticisi: İnkaş İnşaat
Proje Başlangıç Yılı: 2021
Proje Bitiş Yılı: 2023
İnşaat Başlangıç Yılı: 2022, 2023
Arsa Alanı: 7500 m²
Toplam İnşaat Alanı: 5676 m2